EasyManua.ls Logo

Lenze 9300 Series - Mounting with Fixing Rails (Standard)

Lenze 9300 Series
328 pages
Go to English
To Next Page IconTo Next Page
To Next Page IconTo Next Page
To Previous Page IconTo Previous Page
To Previous Page IconTo Previous Page
Loading...
Mechanical installation
Standard devices in the power range 0.37 ... 11 kW
Mounting with fixing rails (standard)
4
142
EDKVS9332X DE/EN/FR 8.0
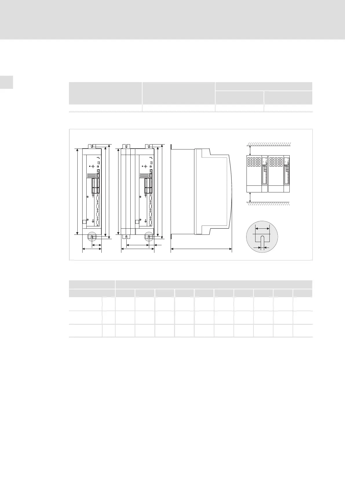
4.1.2 Mounting with fixing rails (standard)
Mounting material required from the scope of supply:
Description Use
Quantity
EVS9321−Ex ...
EVS9324−Ex
EVS9325−Ex
EVS9326−Ex
Fixing rails Drive controller fixing 2 4
Dimensions
a
c
a
c
c1
d
b
b1
b1
d
b
LL
120
k
g
e
³ 100mm
³ 100mm
9300std062
Fig. 4−1 Standard mounting with fixing rails 0.37 ... 11 kW
Drive controllers can be mounted side by side without spacing
9300 Dimensions [mm]
Type a b b1 c c1 d d1 e
1)
g k
EVS9321−Ex
EVS9322−Ex
78 384 350 39 365 ˘ 250 6.5 30
EVS9323−Ex
EVS9324−Ex
97 384 350 48.5 365 ˘ 250 6.5 30
EVS9325−Ex
EVS9326−Ex
135 384 350 21.5 92 365 ˘ 250 6.5 30
1)
For a fieldbus module plugged onto X1, consider mounting space for connecting cables
Mounting
ƒ Attach the fixing rails to the housing of the drive controller.

Table of Contents

Other manuals for Lenze 9300 Series

Related product manuals