EasyManua.ls Logo

Lenze I95AE222F - Page 122

Lenze I95AE222F
184 pages
Go to English
To Next Page IconTo Next Page
To Next Page IconTo Next Page
To Previous Page IconTo Previous Page
To Previous Page IconTo Previous Page
Loading...
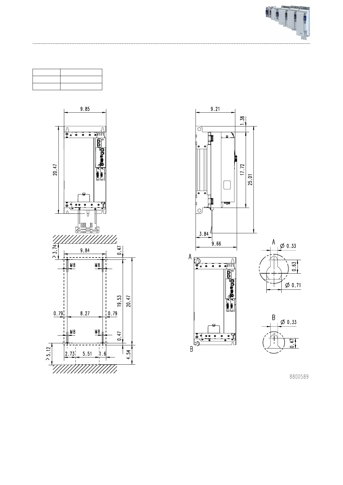
40 hp ... 60 hp
The dimensions in inch apply to:
40 hp I95AE330F
60 hp I95AE345F
Weight 37 lb
Mechanical ins
tallaon
Dimensions
122

Table of Contents

Related product manuals