EasyManua.ls Logo

Lenze I95AE222F - Page 123

Lenze I95AE222F
184 pages
Go to English
To Next Page IconTo Next Page
To Next Page IconTo Next Page
To Previous Page IconTo Previous Page
To Previous Page IconTo Previous Page
Loading...
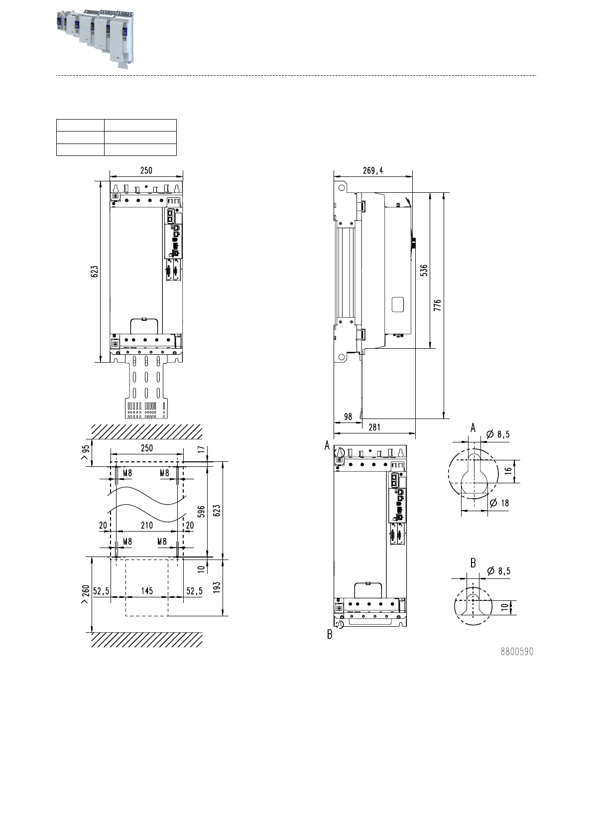
55 kW ... 75 kW
The dimensions in mm apply to:
55 kW I95AE355F
75 kW I95AE375F
Weight 24 kg
Mechanical ins
tallaon
Dimensions
123

Table of Contents

Related product manuals