EasyManua.ls Logo

Lenze I95AE222F - Page 124

Lenze I95AE222F
184 pages
Go to English
To Next Page IconTo Next Page
To Next Page IconTo Next Page
To Previous Page IconTo Previous Page
To Previous Page IconTo Previous Page
Loading...
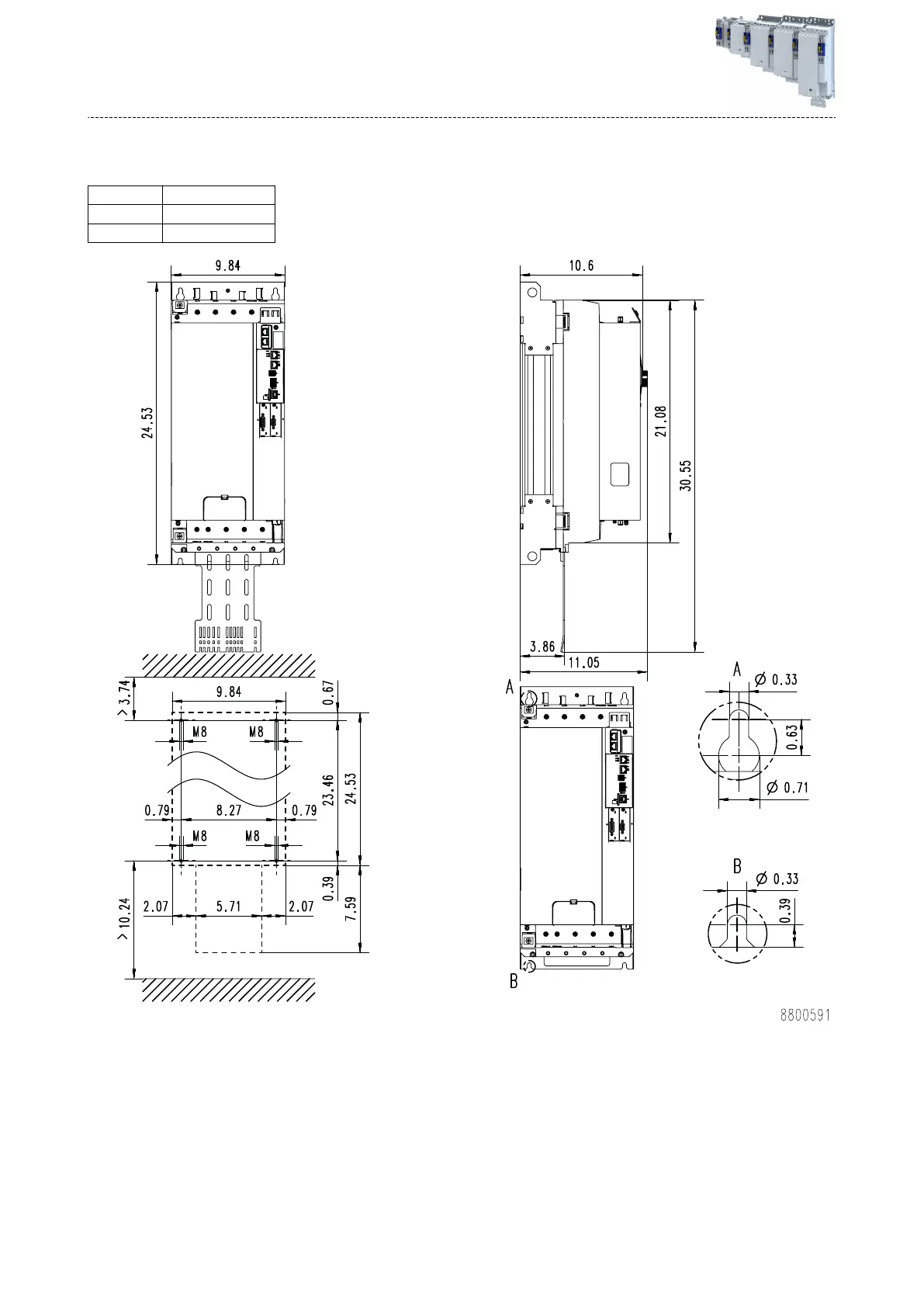
75 hp ... 100 hp
The dimensions in inch apply to:
75 hp I95AE355F
100 hp I95AE375F
Weight 53 lb
Mechanical ins
tallaon
Dimensions
124

Table of Contents

Related product manuals