EasyManua.ls Logo

Lifebreath 2000EFD - Aircom Relays and Interlocking; Interlocking HRV with HVAC Systems

Lifebreath 2000EFD
46 pages
Print Icon
To Next Page IconTo Next Page
To Next Page IconTo Next Page
To Previous Page IconTo Previous Page
To Previous Page IconTo Previous Page
Loading...
www.lifebreath.com
Page 10
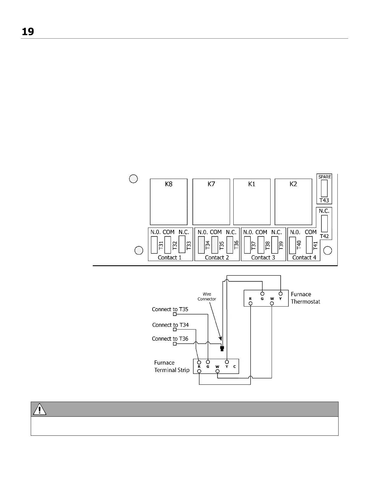
AIRCOM RELAYS & INTERLOCKING TO A FURNACE/AIR HANDLER
The circuit board has three available “dry contact” relays. Contact 3 is not available.
Maximum 115V, 10 amp resistive load.
Contact 1
These relays initiate whenever the HRV is in defrost.
Contact 2 and 4
These relays initiate whenever the HRV fans are operating.
Use contact 2 or 4 to interlock the HRV to an Air Handler or Furnace.
Note: Connecting the HRV as illustrated will ensure the Air Handler Blower Motor is operating
whenever the HRV is ventilating.
Caution
Consideration must be given to competing air flows when connecting the HRV in conjunction
with an Air Handler/Furnace Blower system.

Related product manuals