EasyManua.ls Logo

Lifebreath 2000EFD - Function and Controls

Lifebreath 2000EFD
46 pages
Print Icon
To Next Page IconTo Next Page
To Next Page IconTo Next Page
To Previous Page IconTo Previous Page
To Previous Page IconTo Previous Page
Loading...
www.lifebreath.com 12
FUNCTION AND CONTROLS
Basic Functions
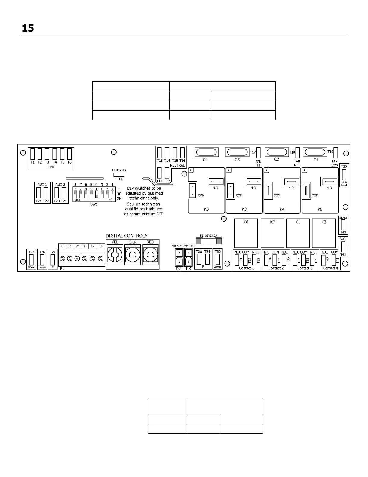
Speed control is obtained by powering 24V to one of the designated speed taps. Select appropriate operational
speed by installing the jumper wire between one of the designated speed taps on the Thermostat terminal
strip on the microprocessor board. A jumper wire is factory installed in the low speed position.
Micro Processor Board
Optional Ventilation Control (99-BC02, 99-
BC03, or 99-BC04)
See Page 21 for installation on circuit board.
Optional 3 Speed Control (99-500)
See Page 22 for installation on circuit board.
Optional Wireless Timer (99-DET02)
See Page 24 for installation.
Optional Wireless Repeater (99-RX02)
See Page 25 for installation.
Optional 20/40/60 Minute Timer (99-DET01)
See Page 26 for installation on circuit board.
Optional Dehumidistat (99-DH01)
See Page 27 for installation on circuit board.
Third Part Dry Contact Controls
Third part dry contact controls can be used with this unit. Connect the control as follows:
Example Controls
Motion Sensors
Time Clocks
Switches
Speed
Jumper Wire Placement
High
R
W
Medium
R
Y
Low (factory default)
R
G
Speed
Terminals on
Thermostat Block
High
R
W
Low
R
G

Related product manuals