EasyManua.ls Logo

Linde E 30-02 - Page 91

Linde E 30-02
96 pages
Print Icon
To Next Page IconTo Next Page
To Next Page IconTo Next Page
To Previous Page IconTo Previous Page
To Previous Page IconTo Previous Page
Loading...
89
336 804 3001.0704
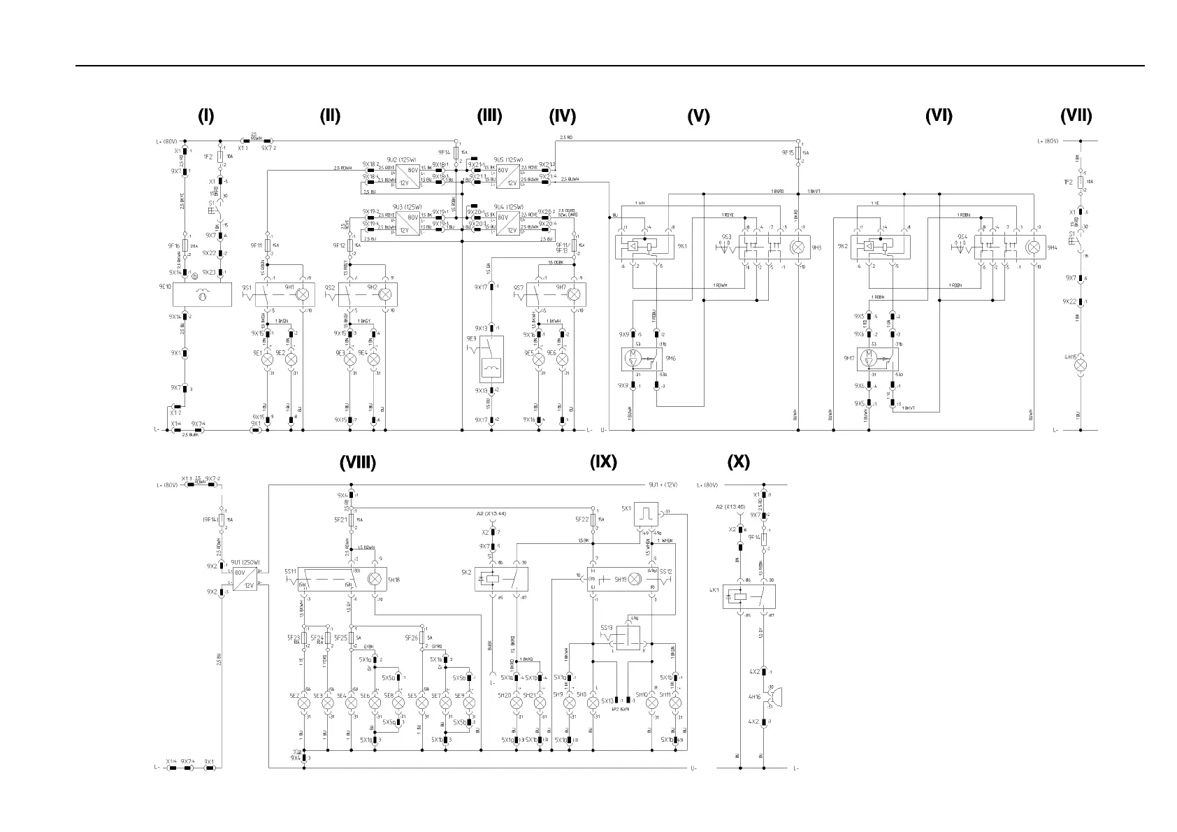
Electric circuit diagram (options)
336 802 0136c

Table of Contents

Related product manuals