EasyManua.ls Logo

Lotus FMEL461 - Page 34

Lotus FMEL461
96 pages
Print Icon
To Next Page IconTo Next Page
To Next Page IconTo Next Page
To Previous Page IconTo Previous Page
To Previous Page IconTo Previous Page
Loading...
6
A
B
D
C
791
852
1561
6182561
947
751
565
756
118
218
315
818
296
54
792 43
12752014461
852
86
160
A
C
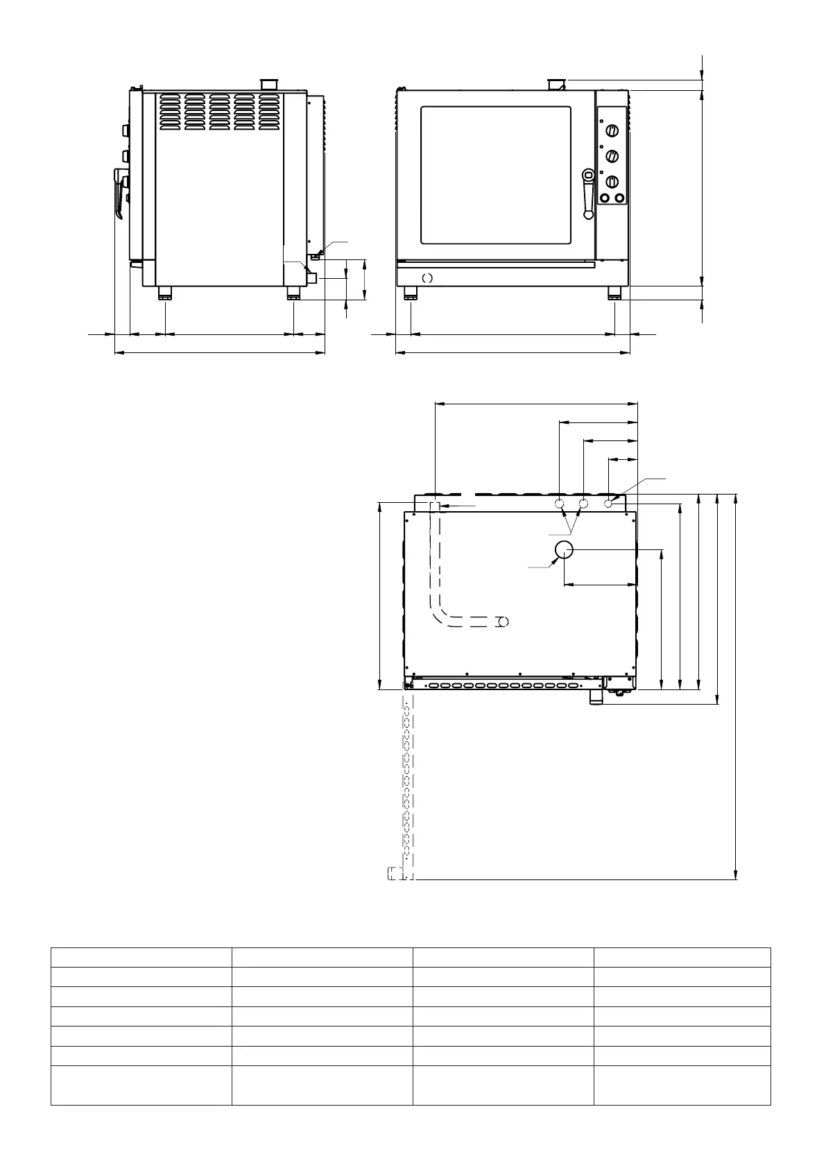
6/7 x 1/1 GN - 60x40 E
Dimensioni Capacità Distanza teglie Peso a vuoto
Dimensions Capacity Trays distance Empty weight
Abmessungen Kapazität Einschubabstand Leergewicht
Dimensions Capacité Ecartement grilles Poids à vide
Dimensiones Capacidad Distancia bandejas Peso en vacío
Afmetingen Capaciteit Afstand dienbladen Leeggewicht
mm 947 x 852 x h 889
6 x 1/1 GN - 60x40
7 x 1/1 GN - 60x40
80 mm
67 mm
123 kg

Table of Contents

Related product manuals