EasyManua.ls Logo

Lotus FMEL461 - Hydraulic Connection Water Inlet; Plumbing - Water Drainage

Lotus FMEL461
96 pages
Print Icon
To Next Page IconTo Next Page
To Next Page IconTo Next Page
To Previous Page IconTo Previous Page
To Previous Page IconTo Previous Page
Loading...
17
2.4 TECNICAL DATA TABLE FOR THE WATER SYSTEM
7 x 1/1 GN 11 x 1/1 GN 7 x 2/1 GN 11 x 2/1 GN 20 x 2/1 GN
Water ow rate regulator for steam
generation in combined cycle.
Ø 0.4 mm Ø 0.4 mm Ø 0.5 mm Ø 0.5 mm Ø 0.5 mm
Water ow rate regulator for steam
generation in steam cycle.
Ø 0.55 mm Ø 0.6 mm Ø 0.6 mm Ø 0.8 mm 2 x Ø 0.7 mm
Water ow rate regulator drain steam
condenser.
Ø 0.7 mm Ø 0.7 mm Ø 0.7 mm Ø 0.7 mm Ø 0.7 mm
2.5 HYDRAULIC CONNECTION – WATER INLET
The ovens have a water inlet coupling at the back. Always install an on-o valve between the appliance and the
water mains, making sure it is easy to operate.
We also suggest installing a cartridge lter on the water inlet pipe.
Always use a set of new water joints, eventual old joints must not be used again.
Plumbing connection must be always eected with cold water and rigid pipes.
Never use hoses to connect the oven to the water main.
In the Convection + Humidication models (Fig. 2.5A), the solenoid valve (A) supplies the system, that genera-
tes steam during the combined cycle.
In the Combi Direct models (Fig. 2.5B), the solenoid valve (A) supply the system that generates steam during
the steam cycle; the solenoid valve (A1) supply the system that generates steam during the combined cycle
and the solenoid valve (B) supply the steam condensation system that comes out of the drainpipe.
Note: in the oor models the hydraulic circuit is split as shown in Figures and 2.5C (mod. 20x2/1)
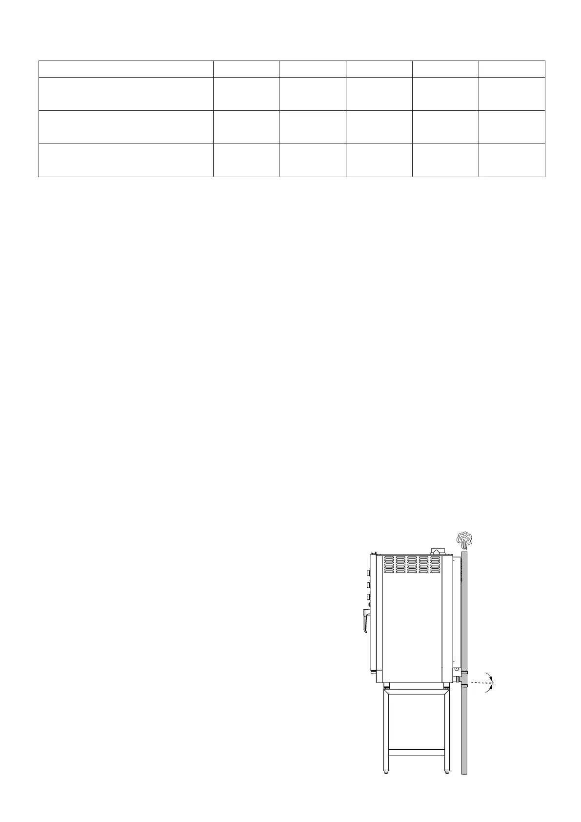
2.6 PLUMBING – WATER DRAINAGE
Drainage for the water is at the back of the oven and must be
connected directly to the end of the stainless steel drainpipe.
The drain must have no trap and be made in rigid pipes that
can withstand a temperature of 110°C.
Under no circumstances must pipe diameter be reduced. The
actual pipe should be at atmospheric pressure with the appro-
priate funnel type air intake.
If the drainpipe is clogged for any reason steam can escape
from the door and bad smells can be created inside in the
oven.
> 2°
EN

Table of Contents

Related product manuals