EasyManua.ls Logo

Lotus FMEL461 - Données Techniques Réseau Deau; Raccordement Hydraulique Arrivée Deau; Raccordement Hydraulique Vidange Deau

Lotus FMEL461
96 pages
Print Icon
To Next Page IconTo Next Page
To Next Page IconTo Next Page
To Previous Page IconTo Previous Page
To Previous Page IconTo Previous Page
Loading...
47
2.4 DONNÉES TECHNIQUES RESEAU D’EAU
7 x 1/1 GN 11 x 1/1 GN 7 x 2/1 GN 11 x 2/1 GN 20 x 2/1 GN
Réglage débit eau cycle mixte.
Ø 0.4 mm Ø 0.4 mm Ø 0.5 mm Ø 0.5 mm Ø 0.5 mm
Réglage débit eau cycle vapeur.
Ø 0.55 mm Ø 0.6 mm Ø 0.6 mm Ø 0.8 mm 2 x Ø 0.7 mm
Régulateur débit eau de condensa-
tion
Ø 0.7 mm Ø 0.7 mm Ø 0.7 mm Ø 0.7 mm Ø 0.7 mm
2.5 RACCORDEMENT HYDRAULIQUE - ARRIVÉE D’EAU
Les fours sont équipés d’un raccord d’arrivée d’eau situé à l’arrière de l’appareil. Il faudra toujours installer
entre l’appareil et le réseau hydraulique un robinet d’arrêt avec commande facilement accessible; en outre, il
est vivement conseillé de monter un ltre à cartouche sur la conduite d’arrivée d’eau. Toujours utiliser un set
de joints hydrauliques nouveaux, les vieux joints ne doivent pas être reutilisés.
Le raccordement hydraulique doit toujours être eectué avec de l’eau froid et tuyaux rigides.
Pas utiliser des tubes exibles pour raccorder le four au réseau hydraulique.
Dans les modèles Convection + Humidication (Fig. 2.5A), le solénoïde (A) alimente le système de production
de vapeur dans le cycle mixte. Dans les modèles Combi Direct (Fig. 2.5B), le solénoïde (A) alimente le produc-
tion de vapeur en cycle vapeur, le solénoïde (A1) alimente le production de vapeur en cycle mixte et l’électrova-
lve (B) alimente le système de condensation de la vapeur sortant du tube d’évacuation.
Attention: dans les modèles de sol le circuit hydraulique est divisé, comme indiqué dans les gures 2.5C (mo-
dèle 20 x 2/1).
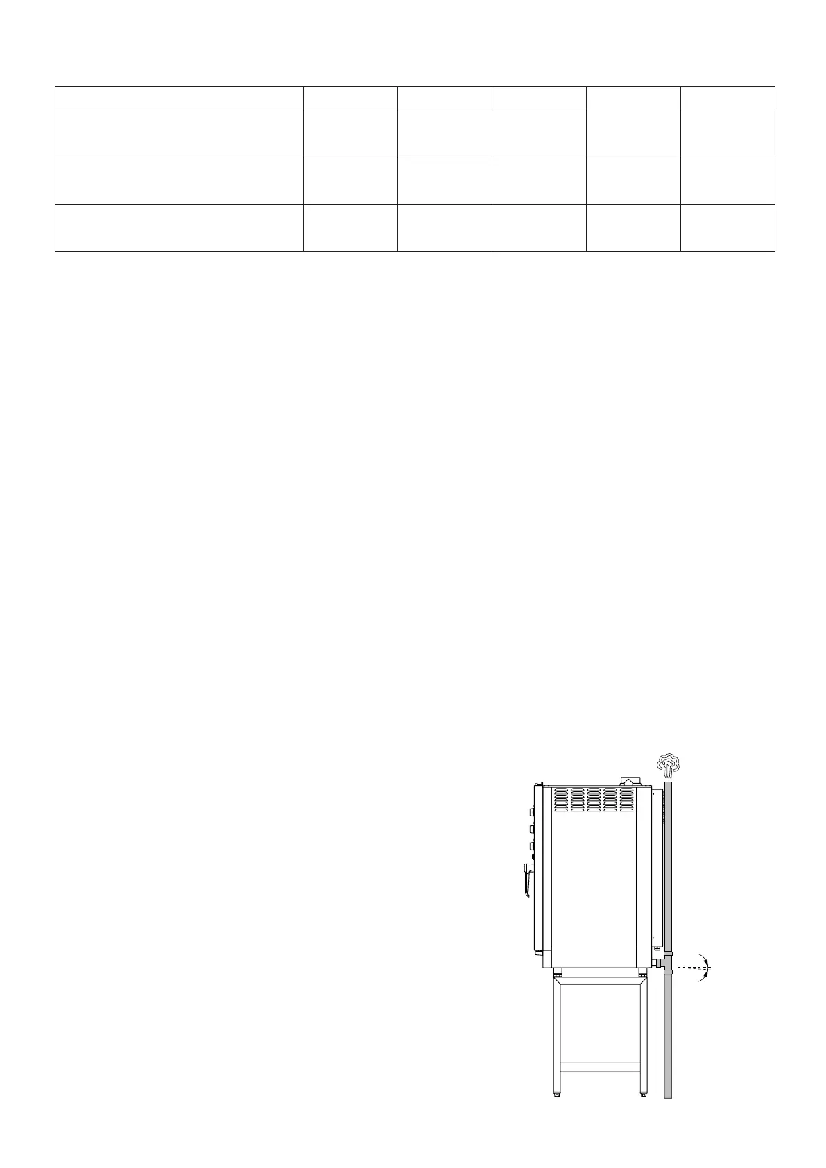
2.6 RACCORDEMENT HYDRAULIQUE – VIDANGE D’EAU
Les fours sont équipés d’un tuyau de vidange de l’eau placé à
l’arrière de l’appareil; le raccordement hydraulique doit être
eectué directement sur l’extrémité du tuyau de vidange en
acier inox.
Le système de vidange ne doit pas avoir de siphon et doit être
réalisé avec des tuyaux rigides et résistants à une tempéra-
ture de 110°C.
Le diamètre du tuyau de vidange ne peut pas être réduit et
il est absolument nécessaire que le raccordement au conduit
soit à pression atmosphérique, avec une adéquate prise d’air
à entonnoir.
L’obstruction du tuyau de vidange peut provoquer une sortie
de vapeur par la porte du four et des mauvaises odeurs à
l’intérieur de l’enceinte de cuisson.
> 2°
FR

Table of Contents

Related product manuals