EasyManua.ls Logo

LSIS XBM-DN16S - Page 206

LSIS XBM-DN16S
315 pages
Print Icon
To Next Page IconTo Next Page
To Next Page IconTo Next Page
To Previous Page IconTo Previous Page
To Previous Page IconTo Previous Page
Loading...
Chapter 7 Program Examples of Positioning
7 - 2
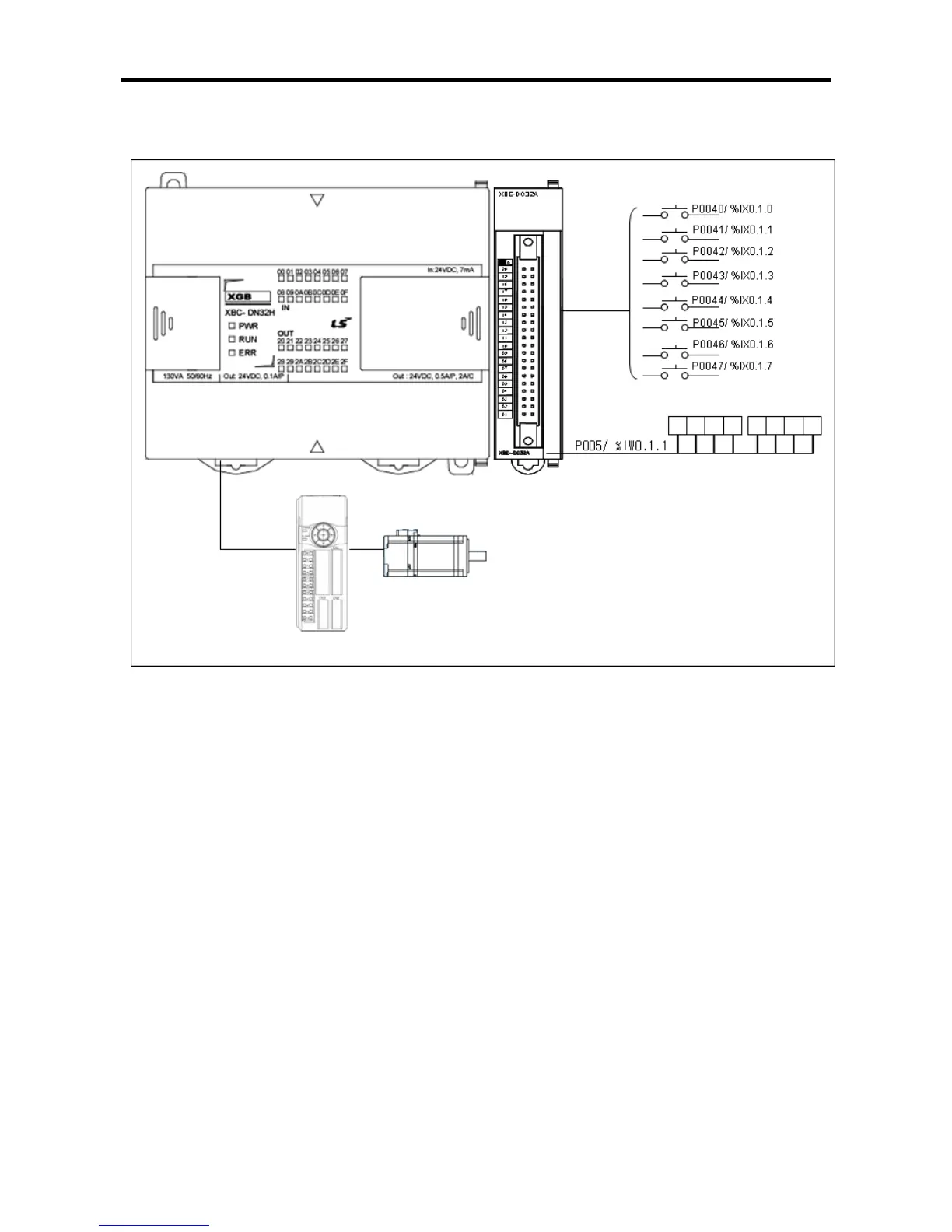
(2) XBC(XEC)-DNxxH system configuration
BCD Digital switch
Servo motor
Servo driver

Table of Contents

Related product manuals