EasyManua.ls Logo

Lull 944E-42 - Page 165

Default Icon
266 pages
Print Icon
To Next Page IconTo Next Page
To Next Page IconTo Next Page
To Previous Page IconTo Previous Page
To Previous Page IconTo Previous Page
Loading...
9-7
944E-42
Electrical System
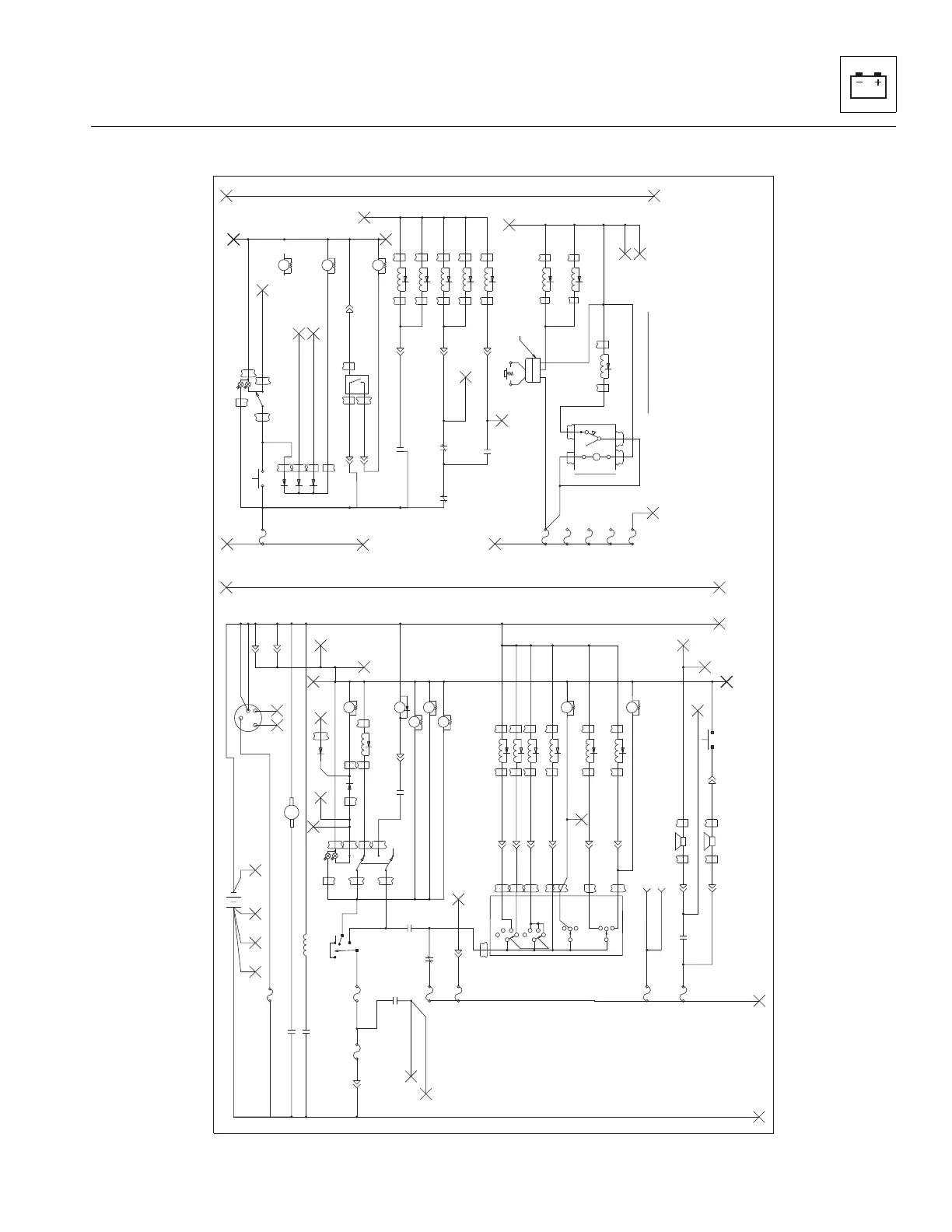
9.5.2 944E-42 Electrical Schematics
BAT1N
BAT1P
PB4
PB2
PB5
NS2
PB1
NS1
ST4
IG2A
AG2
ST1
ST2
BU2
H1
H1A
H2 H2A
S1
S2
CG3
PB6
PB6A
TR1A
TR2B
TR5A
TR4A
TR3A
TR6A
TR7A
EG3
TRG3
S1B
BP1A
BP3
BP2
S1D
S9
S8 S8A
S10
STG2
S8C
S11
S12C
S11B
STG3
STG4
STG5
S12
BP1
BP3A
AW1
12V_BUSSBAR
12V_BUSSBAR
GND_BUSSBAR
GND_BUSSBAR
AD1
S5
BU3C
TRG2
TRG4
TRG5
TR9
BU2A
AG1
IG2
PB2A
PB2B
CP1
LP1
IG1
PB6B
TR8
TR5
TR4
TR3
TR6
TR1
TR2ATR2
BU1
S6
S1A
S2A
S2B
S12A
S8B
S11A
S10B
PB3 PB3A
S4
S4
PB3B
BA1ABA1
FORK SIDE SHIFT
OUTRIGGERS
IG2B
TR7
S3
S3
CG1
CG2
RG4
PBG
RG1
HG
RG5
TCG
BPG
CAB_GND_STUD
STG1
TRG1
PBG1
TRG6
RG3
RG9
RG7
RG8
DG
DG
RG2
B
U3A BU3BBU
3
EG5
EG5
EG1
ST3
GB1
GB2
AH1
AH2 AH2A
AH2B
EG4
AHG2
AHG1
CG3A
AH3AAH3
AH3B
AH4
AHG5
AHG4
AHG3
AUXILIARY HYDRAULICS
SRG
ST4A
DLP
EG1
AHG6
FOR SINGLE JOYSTICK OPTION
CONNECT JOY_3FTO SJOY_3M
(SEE SHEET 4)
NOTE: AUX DUMP CIRCUIT USED ON EARLY MODELS ONLY
NOT USED
AB_F
AB
BA2
BA3
BA3A
BA4
BA4B
BA4B
BA4A
FUSEBOX_BUS_BAR_B
FUSE_BOX_BUSSBAR_A
FUSE_BOX_BUSSBAR_A
BATT1-12V
IGN_SW
ACC
IGN
B+
OFF
ACC
IGN
ST
ST
1A
3
1
PARK_BRAKE_SW
2
ON
OFF
ON
OFF
5
6
4
SYMBOL
BAR
7
8
30
87
IR_NO
Y1
Y2
Y6
Y5
Y4
Y3
M
STARTER
BACKUP_ALARM
30
87A
TCR_NC
HORN
HORN_SW
B
D
W
G
ALT
STAB_BRAKE_SW
1
A
40
AMPS
F1
2
B
15
AMPS
F2
3
C
15
AMPS
F3
PB_F
2
PB_F
3
PB_F
5
PB_F
6
PB_F
1
PBA_F
A
PBA_F
B
TRANS
1
TRANS
2
TRANS
3
TRANS
4
TRANS
5
TRANS
6
TRANS
7
TRANS
8
A
TRANS_BULK
B
TRANS_BULK
C
TRANS_BULK
D
TRANS_BULK
E
TRANS_BULK
F
TRANS_BULK
4
D
20
AMPS
F4
5
E
20
AMPS
F5
6
F
10
AMPS
F6
7
G
10
AMPS
F7
STAB_FLOAT_B
STAB_REST_A
1A
STAB_FLOAT_A
PB_F
7
PB_F
8
STARTER_SOL
SR_NO
SS_NO
87
30
BAR_NO
3
2
SYMBOL
BAR
7
8
TRANS_CUTOUT_SW
50
TCO_F
2
TCO_F
7
TCO_F
8
TCO_F
3
85
86
COIL
E5
85
86
SLR
E6
BOOM_PROX_SW
85
86
BR
E7
85
86
TCR
E1
85
86
LPR
E8
85
86
IR
E2
85
86
CPR
E9
85
86
NSR
E3
85
86
BAR
E4
87
30
BR_NO
BP_F
A
BP_F
B
BP_F
C
87
30
SLR_NO
STAB_REST_B
STAB_LOCK
ST_FLA_F
A
ST_FLA_F
B
ST_FLB_F
A
ST_FLB_F
B
60
65
ST_RA_F
A
ST_RA_F
B
ST_RB_F
A
ST_RB_F
B
ST_L_F
A
ST_L_F
B
70
75
sht 2 AW1
sht2AD1
PB_SOL_A
87
30
NSR_NO
sht 1 S5
sht 1 S5
sht 2 S10C
sht 2 S12B
sht 2 BU3C
X5
A
X5
B
X6
A
X6
B
X7
A
X7
B
X8
A
X8
B
X9
A
X9
B
X10
A
X10
B
AD5 7
B+ 8
SW1
AD3 3
AD4 1
AD6 6
AD7 5
AD1 2
AD2 4
SW4
SW2
SW3
R
N
F
N
R
F
4
2
3
1
2
3
1
4
TRANS_SHIFTER
SR
40
35
10
15
30
VP2
C
VP2
B
VP2
A
1A
1A
1A
55
VP1
C
VP1
A
5
sht 1 S4
sht 1 S4
sht 2 PB3B
10
J
7.5
AMPS
F10
A
PWR_BULK_3
11
K
RATING
AMPS
F11
12
L
RATING
AMPS
F12
25
sht 1 S3
sht 1 S3
87
30
TCR_NO
C
PWR_BULK_6
87A
30
BR_NC
87A
30
SLR_NC
A2
VEH_BULK
A3
VEH_BULK
B5
VEH_BULK
B4
VEH_BULK
B3
VEH_BULK
B1
VEH_BULK
A5
VEH_BULK
B2
VEH_BULK_F
B
PWR_BULK_6
F
PWR_BULK_6
A4
VEH_BULK_F
A
PWR_BULK_6
85
sht1RG5
sht1RG5
80
100
13
M
RATING
AMPS
F13
14
N
3
AMPS
F14
sht 2 DG
VP1
F
VP2
F
D
PWR_BULK_6
E
PWR_BULK_6
45
sht 1 EG5
90
BUA_F
A
BUA_F
B
HORN_F
1
HORN_F
2
AUX_A_F
A
AUX_A_F
B
AUX_B_F
A
AUX_B_F
B
AUX_A
AUX_B
105
20
sht 2 SG1
sht 2 SG2
sht 1 CG3A
sht1CG3A
sht 4 GH1P
sht 4 GH2P
3
2
+8
1
-7
AUX
DUMP
SWITCH
AUX_DUMP_SOL
AUX_DUMP_8F
2
AUX_DUMP_8F
3
AUX_DUMP_8F
7
AUX_DUMP_8F
8
AUX_DUMP_2F
A
AUX_DUMP_2F
B
290
295
sht 4 ST4A
sht 4 BAT2P
sht 4 BAT2N
sht 4 DLP
sht 1 EG1
sht 1 EG1
JOYSTICK
JOY_3F
ABC
JOY_3M
CBA
A
B
150
AMPS
FUSIBLE_LINK
246
1
247
1
sht 1 BA4B
sht 1 BA4B
sht 2 BA4A
MU7490H

Table of Contents

Related product manuals