EasyManua.ls Logo

Lunos Nexxt - Wall Housing Details; Wall Housing Nexxt Specifications

Lunos Nexxt
Print Icon
To Next Page IconTo Next Page
To Next Page IconTo Next Page
To Previous Page IconTo Previous Page
To Previous Page IconTo Previous Page
Loading...
30
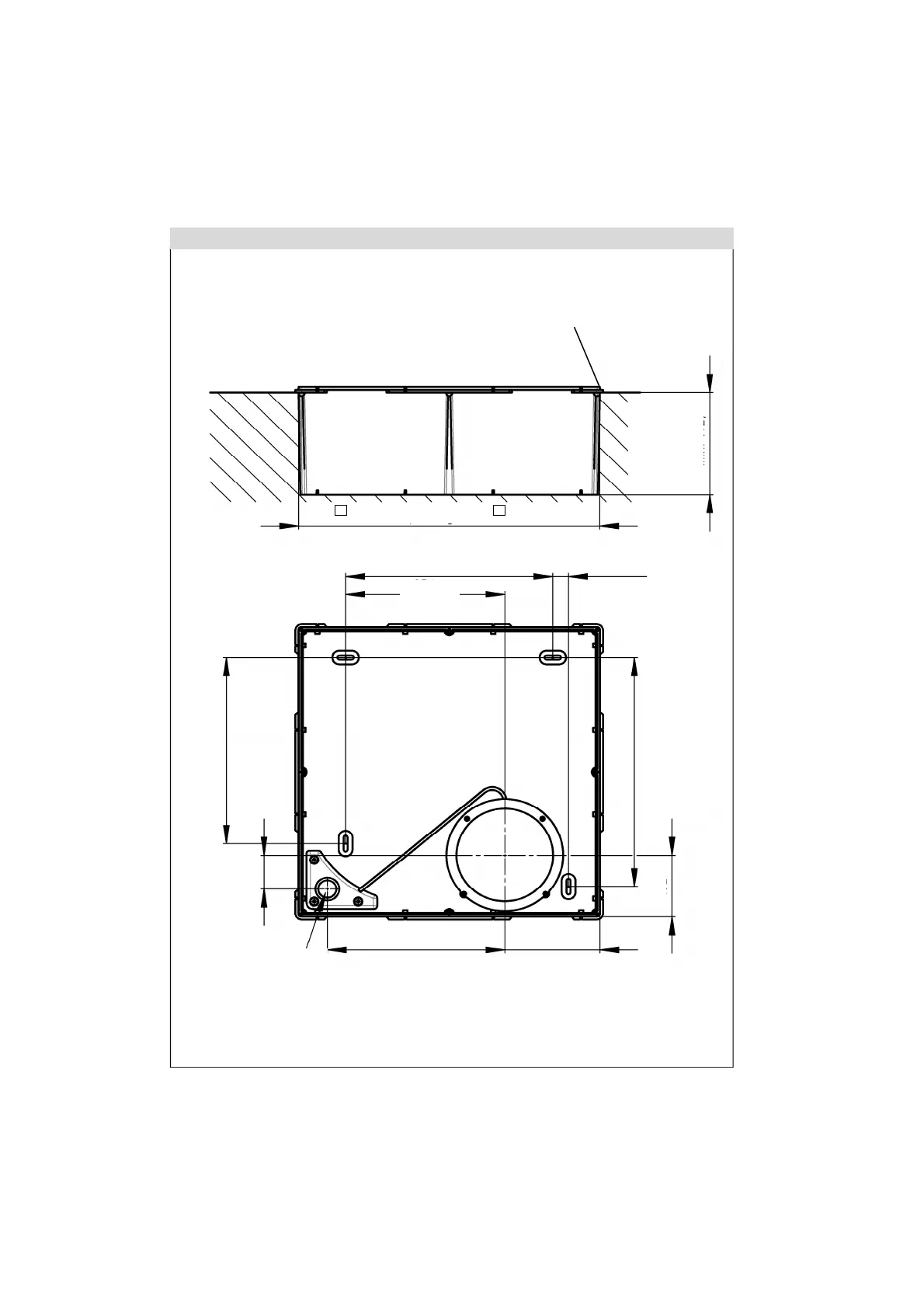
Caution! The surrounding claws must be with
its upper edge plaster-flush in the finished plas-
ter below! This is of decisive importance for the
correct function of the device.
Wall housing Ne
xx
t EN
480 (Recess wall min. 482)
170
(Depth of cut-
out min. 172)
330 25
254
283
152
380
308
102
57
Mains connection /
Adapter

Related product manuals