EasyManua.ls Logo

Lunos Nexxt - Scatoa a Parete Ne

Lunos Nexxt
Print Icon
To Next Page IconTo Next Page
To Next Page IconTo Next Page
To Previous Page IconTo Previous Page
To Previous Page IconTo Previous Page
Loading...
4
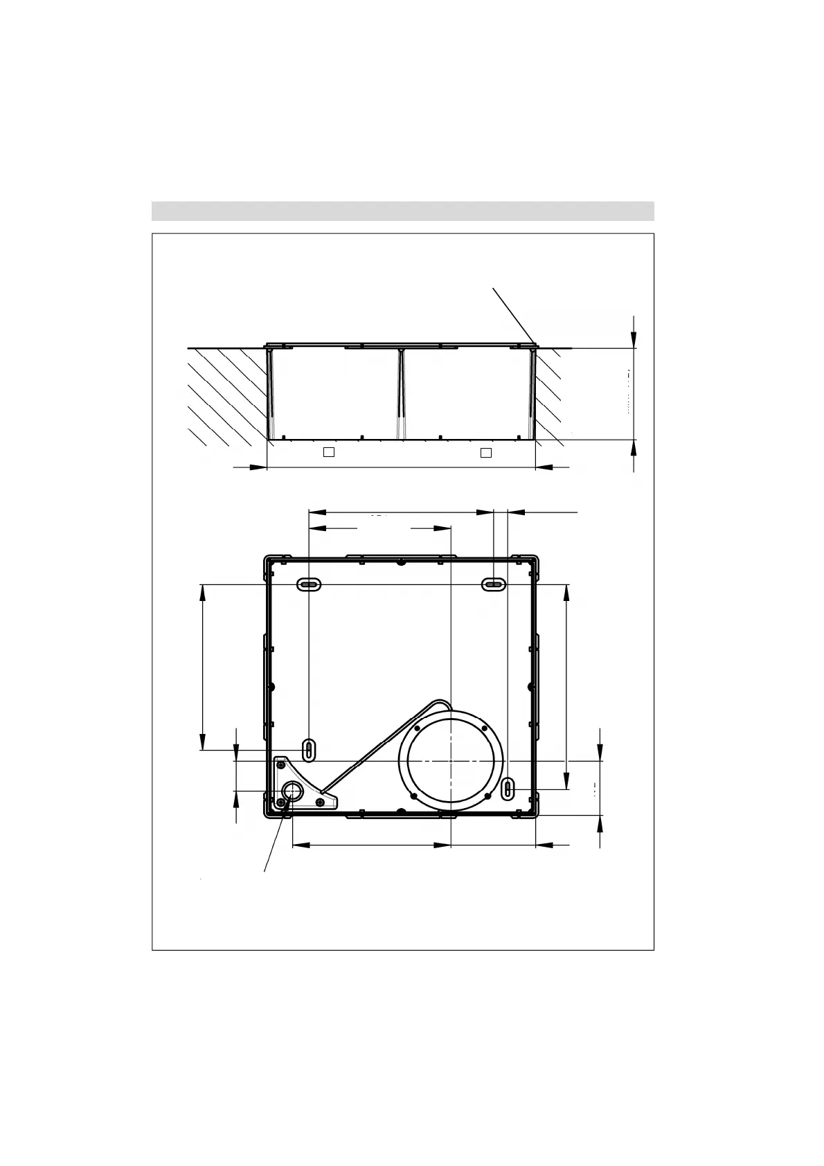
Attenzione! A intonacatura finita, la bordatura dev‘essere
a filo con il suo spigolo superiore. Questo è di im-
portanza determinante per il corretto funzionamento
dell‘apparecchio.
Carcassa Ne
xx
t
480 (invaso muro min. 482)
170
(profondità
ritaglio
min. 172)
330 25
254
283
152
380
308
102
57
Allacciamento di
rete/ adattatore

Related product manuals