EasyManua.ls Logo

Lunos Nexxt - Concealed Installation Steps; Wall Cut-out Preparation; Core Bore for Breakthrough Pipe; Internal Breakthrough Pipe Mounting

Lunos Nexxt
Print Icon
To Next Page IconTo Next Page
To Next Page IconTo Next Page
To Previous Page IconTo Previous Page
To Previous Page IconTo Previous Page
Loading...
39
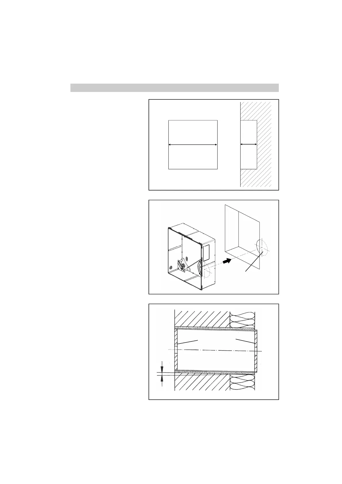
Installation - Concealed installation
Manufacture the wall cut-out for
the wall installation housing.
Stipulate the position of the core
bore for the wall break-through
pipe with the aid of the wall instal-
lation housing.
Manufacture the core bore for the
wall break-through pipe.
Mount the internal wall break-
through pipe flush with the wall
opening, externally with slight
protrusion for the bridging of the
external plaster thickness.
Keep to the slope indicated in the
illustration. Clean the pipe exter-
nally.
482 mm 172 mm
inner
outer
Cleaning protective
3 mm
Core bore
Ø: 162 mm

Related product manuals