EasyManua.ls Logo

MacDon 802 - Preparing the Header

MacDon 802
45 pages
Print Icon
To Next Page IconTo Next Page
To Next Page IconTo Next Page
To Previous Page IconTo Previous Page
To Previous Page IconTo Previous Page
Loading...
11
INITIAL SET-UP
PREPARING THE HEADER
Tractor is positioned at header center delivery opening. A center delivered windrow goes under the tractor.
Windrow width and height are limited by tractor tire tread width and tractor frame height.
Headers with hay conditioner: Cab end tire tread width must be 88” (2235 mm) center to center to clear
hay conditioner shield.
Headers with Reel Lift: Extend reel lift hose by removing existing coupler and replacing it with hose and
coupler supplied with adapter.
970 Series Headers: For 21’ to 36’ headers, the sickle drive assembly at left end sheet and drive shaft along
left side of back tube must be in “Windrower” configuration (in upper of two positions). If conversion from
“Combine” configuration is necessary, order the following conversion kit:
21’ – B2620, 25’ – B2621, 30’ – B2622, 36’ – B2623. Instructions are provided with the kit.
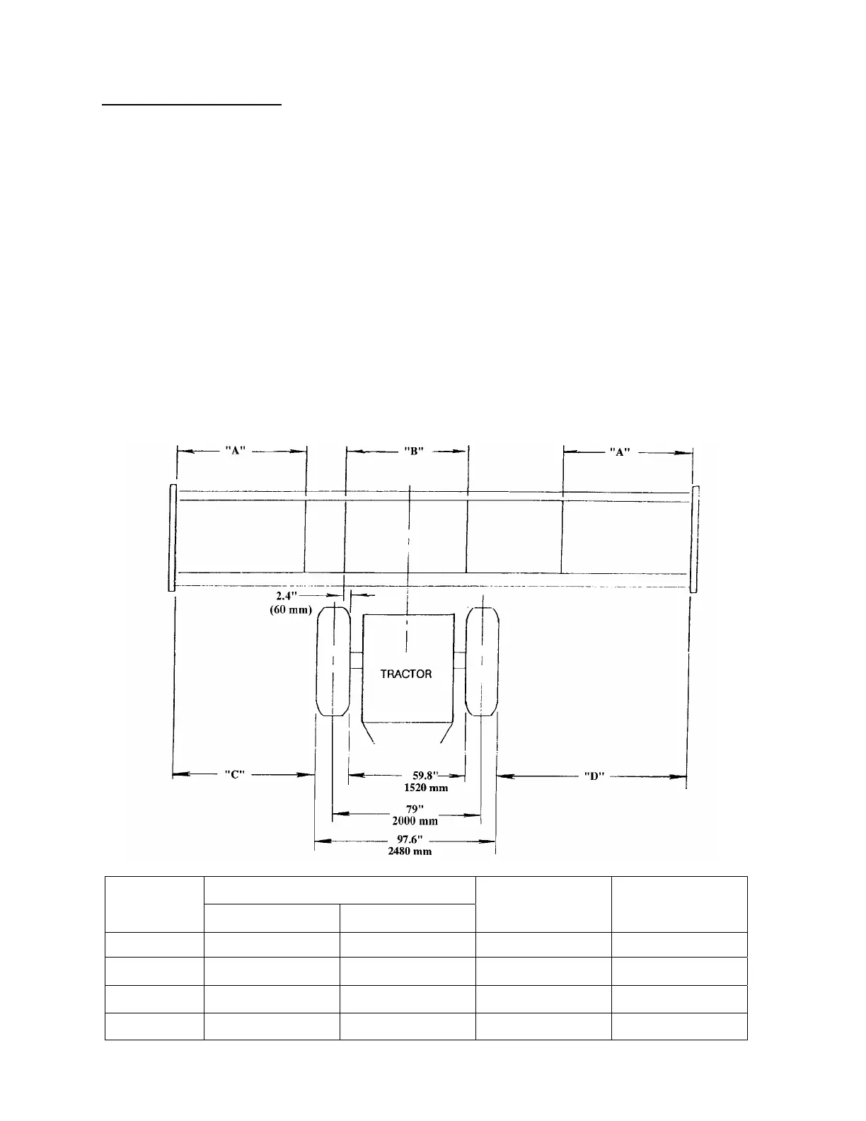
The illustration below shows the maximum delivery opening width (distance between rollers) and clearances
with tractor tire tread width set at 79 inches (2000mm). This is the minimum tread width recommended for the
802 Adapter. Tractor tire to windrow clearance can be increased by changing the tread width. Keep in mind
that crop may fan out as it leaves the header. Allow enough clearance to prevent tires running over the
windrow.
NOTE: Delivering bushy crops like canola under the tractor may cause poor windrow formation due to
restricted under-tractor clearance.
MAXIMUM OPENING SIZE
HEADER
SIZE
DIM. “A” DIM. “B”
DIM. “C” DIM. “D”
21’
53.0” (1345 mm) 65.4” (1660 mm) 74.5” (1892 mm) 74.5” (1892 mm)
25’
64.3” (1633 mm) 65.4” (1660 mm) 98.5” (2502 mm) 98.5” (2502 mm)
30’
64.3” (1633 mm) 65.4” (1660 mm) 128.5” (3264 mm) 128.5” (3264 mm)
36’
64.3” (1633 mm) 65.4” (1660 mm) 152.7” (3879 mm) 176.3” (4478 mm)

Related product manuals