EasyManua.ls Logo

MacDon 9352 - Page 159

MacDon 9352
160 pages
Print Icon
To Next Page IconTo Next Page
To Next Page IconTo Next Page
To Previous Page IconTo Previous Page
To Previous Page IconTo Previous Page
Loading...
Form 46584 Issue 11/06
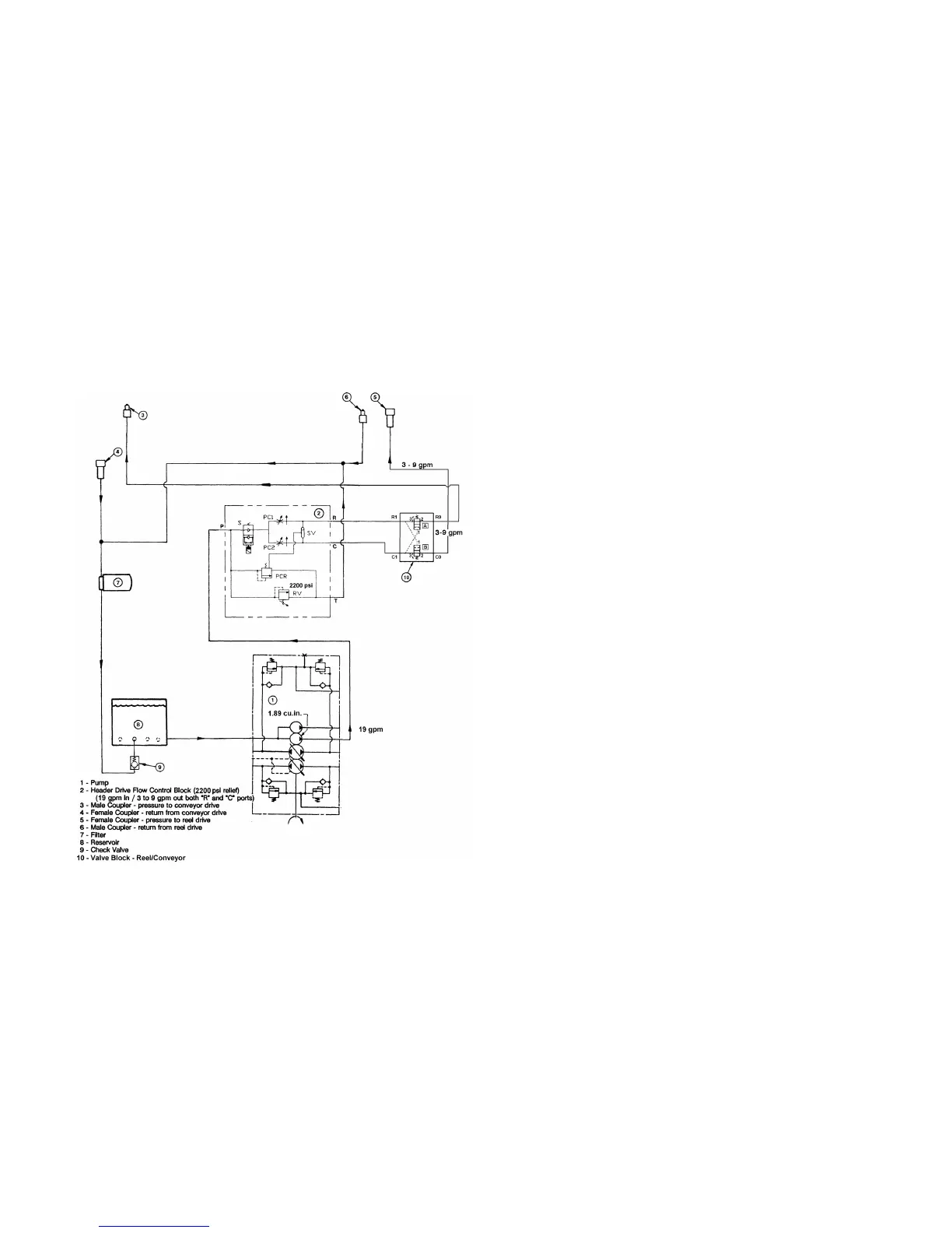
Header Drive: Hydraulic Schematic

Table of Contents

Related product manuals