EasyManua.ls Logo

Masport SOFIA - Page 25

Masport SOFIA
69 pages
Print Icon
To Next Page IconTo Next Page
To Next Page IconTo Next Page
To Previous Page IconTo Previous Page
To Previous Page IconTo Previous Page
Loading...
Page 25
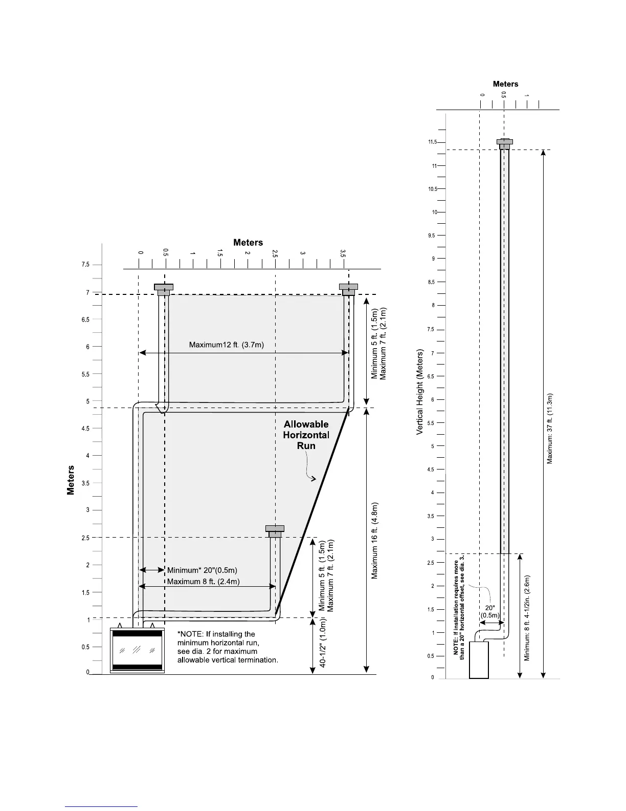
FLUEING ARRANGEMENTS - VERTICAL TERMINATIONS
The Grenada/Calais is approved for a 23 ft. (7.0m) vertical, with a maximum
12 ft. (3.7m) horizontal offset using two 90
o
elbows (two 45
o
elbows equal one
90
o
elbow)
The Grenada/Calais is approved for a 37 ft. (11.3m straight vertical, including
a 510mm horizontal offset using two 90
o
elbow (two 45
o
elbows equal one 90
o
elbow)
Flue must be supported at offsets
Maintain clearances to combustibles as listed.
Note:Flexi Direct Vent System is only approved for horizontal terminations.
Diagram 1
Diagram 2

Other manuals for Masport SOFIA

Related product manuals