EasyManua.ls Logo

Masport SOFIA - Page 40

Masport SOFIA
69 pages
Print Icon
To Next Page IconTo Next Page
To Next Page IconTo Next Page
To Previous Page IconTo Previous Page
To Previous Page IconTo Previous Page
Loading...
Page 40
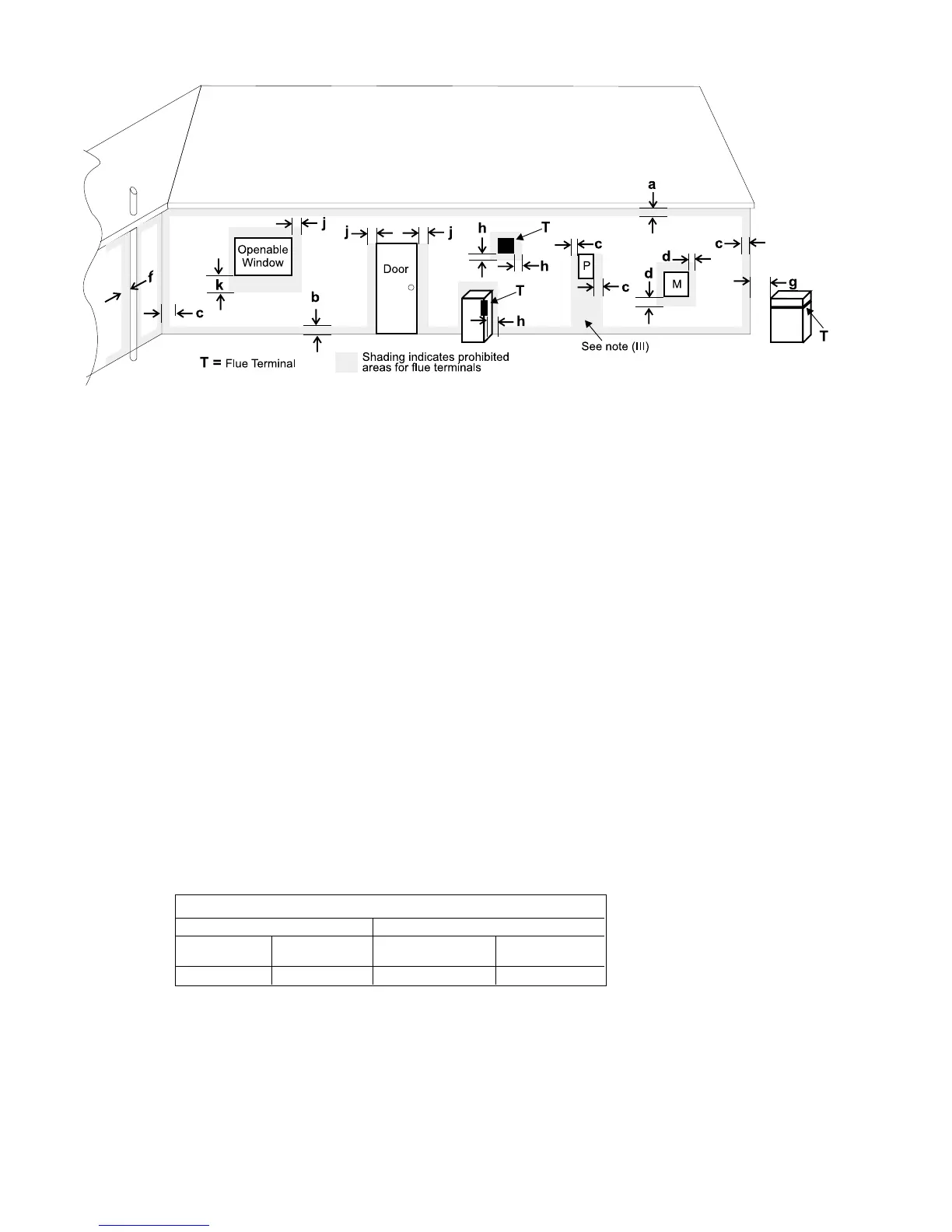
Clearance 'k' in mm
Space heaters All other appliances
Up to 50 MJ/h Up to 50 MJ/h Over 50 MJ/h Over 150 MJ/h
input input to 150 MJ/h input input
150 500 1000 1500
EXTERIOR FLUE TERMINATION LOCATIONS
Minimum clearances required for balanced flue terminals or
the flue terminals of outdoor appliances
according to AG 601 (AGA gas installation code) or NZS 5262 (New Zealand)
Minimum
Clearance (mm)
a Below eaves, balconies or other projections:
- Appliances up to 50 MJ/h input 300
- Appliances over 50 MJ/h input 500
b From the ground or above a balcony 500
c From a return wall or external corner 500
d From a gas meter (M) 1000
e From an electricity meter or fuse box (P) 500
f From a drain or soil pipe 150
g Horizontal from any building structure (unless appliance is approved
for closer installation) or obstruction facing a terminal 500
h From any other flue terminal, cowl or combustion air intake 500
j Horizontally from an openable window, door, or non-mechanical air inlet, or
any other opening into a building, with the exception of sub-floor ventilation
(see also Note (I)):
- Appliances up to 150 MJ/h input 500
- Appliances over 150 MJ/h input 1500
k Vertically below an openable window, door, or non-mechanical air inlet,
or any other opening into a building, with the exception of sub-floor ventilation
(see also Note (I)): see table below
NOTES:
(I) For mechanical air inlets, including spa blowers, the clearance 'j' and 'k' shall be 1500
mm in all cases.
(II) All distances shall be measured vertically or horizontally along the wall to a point in line
with the nearest par to of the terminal.
(III) Prohibited area below electricity meter or fuse box extends to ground level.
(IV) A flue terminal of this type shall not be located under a roofed area unless the roofed
area is fully open on at least two sides and a free flow of air at the appliance is
achieved.

Other manuals for Masport SOFIA

Related product manuals