EasyManua.ls Logo

Masport SOFIA - Page 41

Masport SOFIA
69 pages
Print Icon
To Next Page IconTo Next Page
To Next Page IconTo Next Page
To Previous Page IconTo Previous Page
To Previous Page IconTo Previous Page
Loading...
Page 41
PLANNING YOUR FLUING INSTALLATION
When planning your installation, it will
be necessary to select the proper
length of flue pipe for your particular
requirements. Determine the minimum
clearance to combustibles from the
rear of the unit to the wall. It is also
important to note the wall thickness.
Before cutting the flue hole through
the wall ensure that ALL flue and
termination clearances will be met.
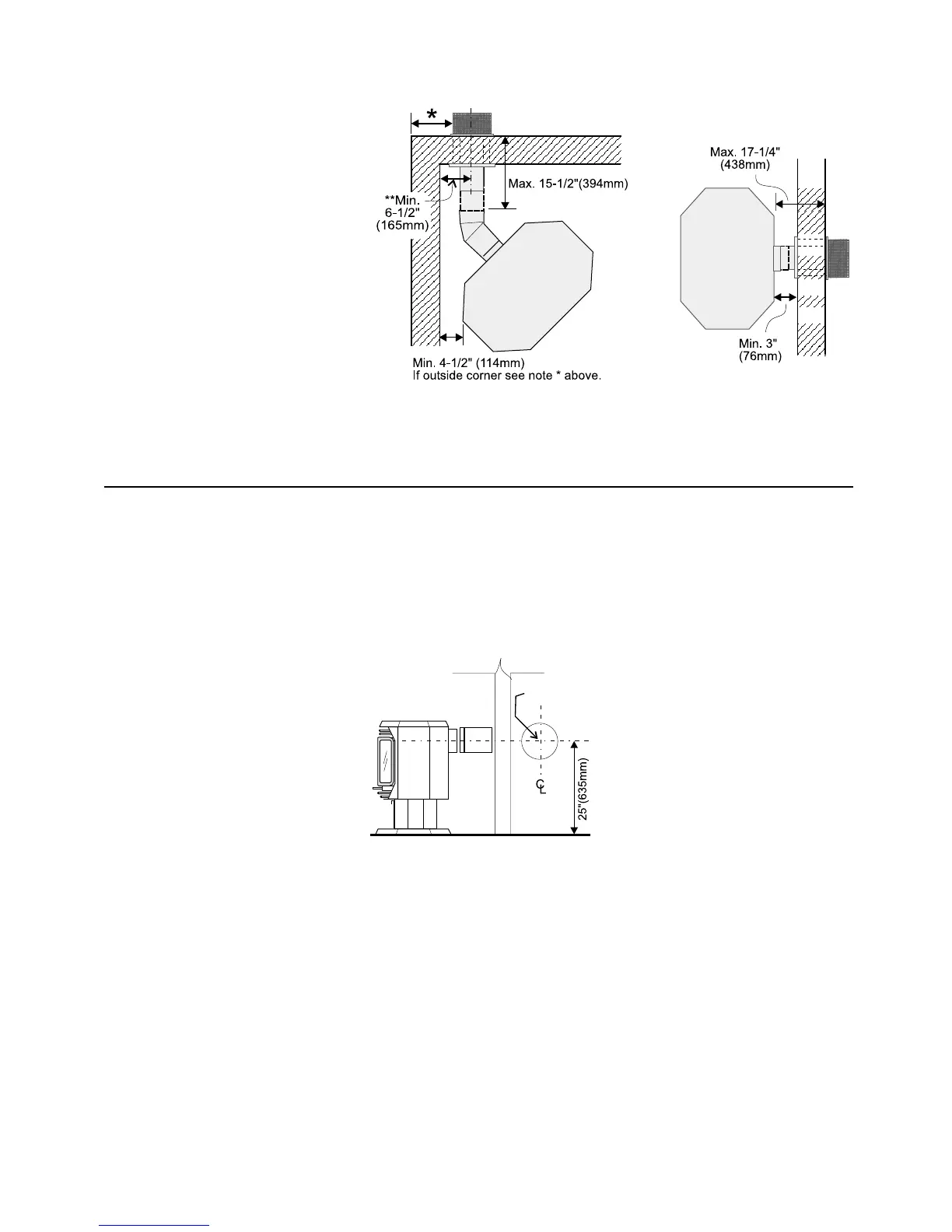
*If this is an outside corner, the
minimum distance between the flue
and the outside corner is 500mm.
NOTE: Ensure compliance with the
outside flue terminal location before
cutting hole as both dimensions must
be met.
For corner installation,
Restrictor must be set at
32mm open.
For straight rear installation,
Restrictor must be set at
29mm open.
HORIZONTAL INSTALLATIONS
Diagram 1
1) Set the unit in its desired location.
Check to determine if wall studs
are in the way when the fluing
system is attached. If this is the
case, you may want to adjust the
location of the unit.
2) Assemble the desired combination
of pipe and elbow to the appliance.
Seal with Mil-Pac.
3) With the pipe attached to the stove,
slide the stove into its correct
location, and mark the wall for a
241mm (inside dimensions) round
hole. The centre of the round hole
should line up with the centreline of
the horizontal pipe, as shown in
diagram 1. Cut and frame the
241mm round hole in the exterior
wall where the flue will be
a) The horizontal run of flue should
have a 6mm rise for every
305mm of run towards the
termination. Never allow the flue
to run downward. This could
cause high temperatures and
may present the possibility of a
fire.
b) The location of the horizontal
flue termination on an exterior
wall must meet all local and
national building codes, and
must not be blocked or
obstructed.
terminated. If the wall being
penetrated is constructed of non-
combustible material, i.e. masonry
block or concrete, a 178mm
diametre hole is acceptable.
Note:
NOTE: Installation and annual service must be performed by a qualified installer, service
agency or the gas supplier to validate warranty. The information in this manual is
subject to change without notice. Always refer to the information in the installation
manual that is supplied with each unit.
Always check for high wind conditions before installing Direct Vent systems. Mil-Pac
sealant must be used to seal inner pipe.
centreline
centre
of hole

Other manuals for Masport SOFIA

Related product manuals