EasyManua.ls Logo

Masport SOFIA - Page 55

Masport SOFIA
69 pages
Print Icon
To Next Page IconTo Next Page
To Next Page IconTo Next Page
To Previous Page IconTo Previous Page
To Previous Page IconTo Previous Page
Loading...
Page 55
GENERAL INFORMATION
This kit consists of factory built parts that require
minimal assembly to form the Zero Clearance
enclosure for the U41/I41 Gas Insert. The
enclosure can then be fixed into a framed
combustible construction, and a standard "B-vent"
installed on the assembly for the required venting.
The insert can be installed later.
The faceplate will normally overlap on top of the
finished wall. The base of the Zero Clearance Kit
can be installed directly on carpeting, tile or any
flooring material; however, the hearth if installed in
front of the unit requires special protection as
described in the "Hearth" section on page 4.
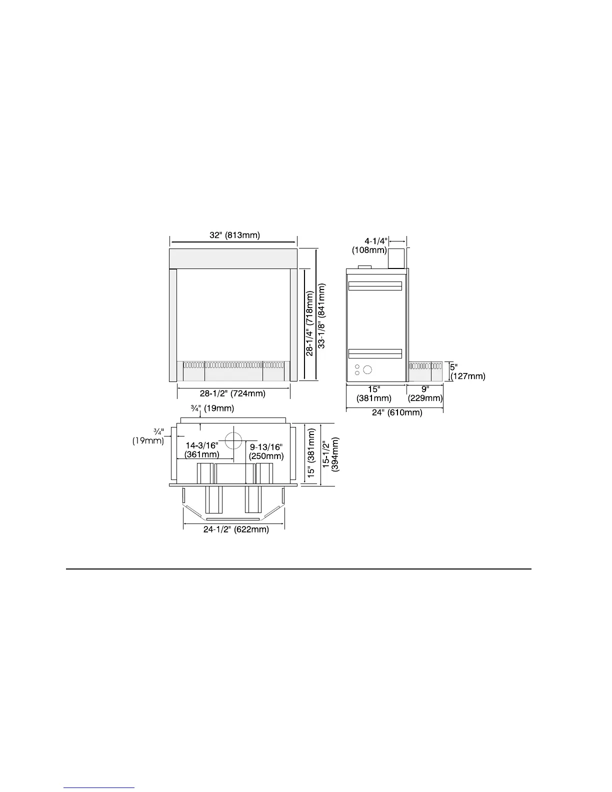
U41/I41 Zero Clearance Kit Specifications
Using Kit# 660-900 you can convert the Gas Insert
models U41 and I41 into highly efficient heat
producing Zero Clearance Fireplaces.
REQUIRED PARTS
Included with Kit:
1 660-908 Main Body Assembly
1 660-906 Front Base Assembly
Sold Separately:
1 660-911 Zero Clearance Faceplate
44-3/8"(1127mm) W x 33-5/16"(846mm) H
LISTINGS AND CODE APPROVALS
This gas component has been tested in accordance with National Safety Standards, and has been certified by Warnock
Hersey for installation and operation in the United States, Canada, Australia, and New Zealand as described in these
Installation and Operating Instructions.
Check with your local building code agency before you begin your installation to ensure compliance with local codes,
including the need for "permits" and follow-up inspections. If any problems are encountered regarding code approvals, or if
you wish clarification on any of the instructions contained here, contact your local dealer.

Other manuals for Masport SOFIA

Related product manuals