EasyManua.ls Logo

MAXA R407C - Page 45

MAXA R407C
70 pages
Print Icon
To Next Page IconTo Next Page
To Next Page IconTo Next Page
To Previous Page IconTo Previous Page
To Previous Page IconTo Previous Page
Loading...
CD 30 ÷ 520
45
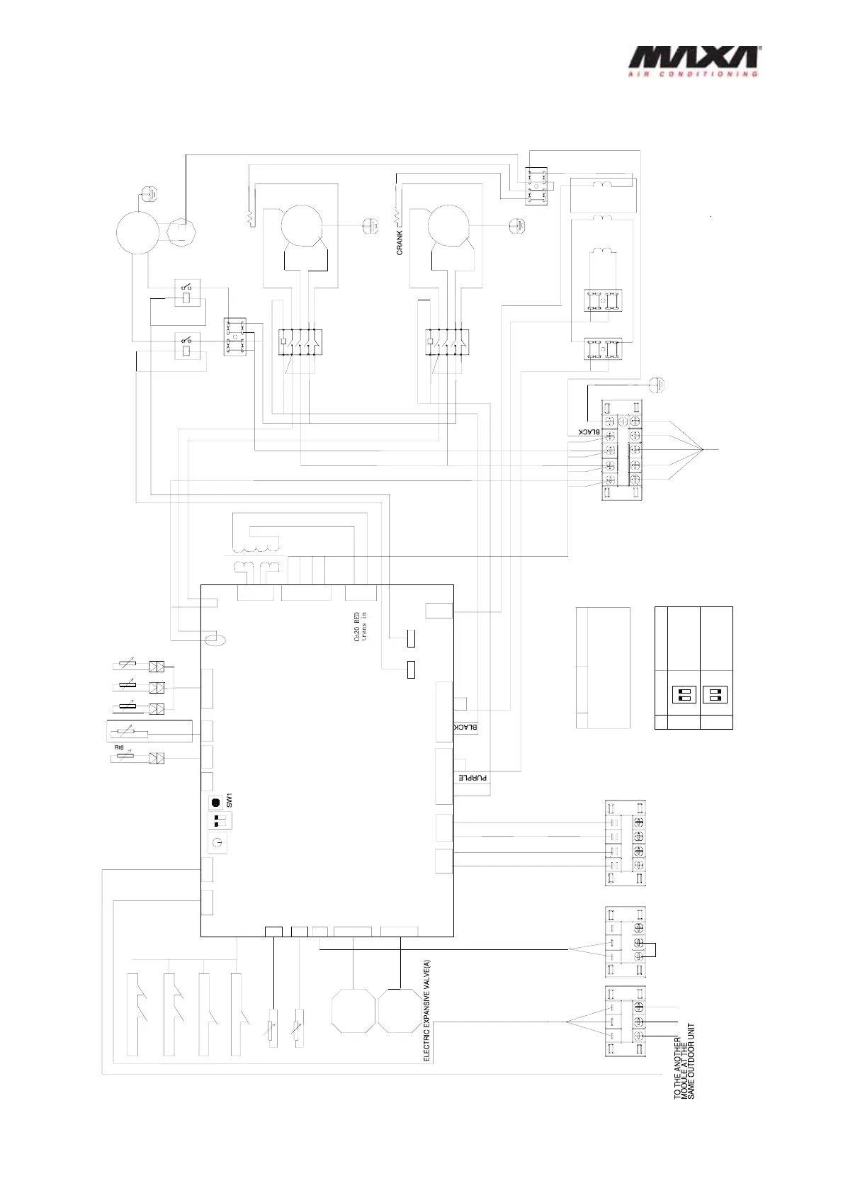
16. Electric control figure (auxiliary unit)
BLUE
T3
A1
22
GRAY
B
L
A
C
K
1 2
ON
KM1
KM2
PWM(B)
RED
BLACK
4-VALVE A
S.V(A)
HIGH
LOW
ORANGE
RED
XP9
XS9
RED
BLACK
WHITE
BLUE
WHITE
RED
RED
WHITE
BLUE
RED
RED
BLACK
BLUE
RELAY
RELAY
FAN CAP
FAN MOTOR
CRANK
AC CONTACTOR
ELECTRIC EXPANSIVE VALVE(B)
OUTDOOR TEMP SENSOR
CONDENSER TEMP B
CONDENSER TEMP A
protector B
High pressure
protector B
LOW pressure
QUERY
XT1
5-WAY TERMINAL
POWER
RED
WHITE
BLUE
BLACK
Y&G
PURPLE
protector A
Low pressure
YELLOW
protector A
High pressure
switch A
Temp protector
RQYGT
%P9*+6'
Cn17
Pwm
%P9*+6'%P$.#%-
Comp(b) s.v(b)
Comp(a) s.v(a)
Cn9
Pump
Cn7
Heat
2/8C
%P9*+6'
2/8D
%P4'&
YCVGTARTQ
%P4'&
h&l_pro
Cn5
Com(i)
Com(o)
Cn6
Cn8
Cn10 Cn12 Cn13
Cn14
curRent(a)
Ct1
curRent(b)
Ct2
PWM(A)
GRAY
Y
E
L
L
O
W
A2
T2
T1
HEAT_A
Q
P
(E)
FAN
<*
RED
WHITE
4
XP8
XP7
N
C
Y&G
COMP
2
1
5
21
3
6
T
4
T
3
B
T
3
A
80~*z
BA
XS8
XS7
GRAY
VTCPUQWV
%P9*+6'
ry7
Fan_h
ry8
Fan_l
RED
WHITE
YELLOW
BLUE
WHITE
COMP
2
1
5
21
3
6
22
4
T3
WHITE
A1
A2
T2
T1
Y&G
RED
BLACK
RED
BLUE
COMP B
AC CONTACTOR
ORANGE
BLACK
RED
BLUE
BLACK
PURPLE
BLACK
BLUE
BLACK
4-VALVE B
S.V(B)
BLACK
Xt7
WIRE JOINT
MIDDLE
WIRE JOINT
MIDDLE
BLACK
BLUE
BLUE
YELLOW
H2 P1 P2H1
Xt8
WIRE JOINT
MIDDLE
BLACK
BLUE
WHITE
RED
Xt2
3-WAY TERMINAL
Xt4
S1
S2
1 2
ON
S1
16-WAY DAIL SWITCH FUNCTION
1 2
ON
1
2
SWITCH
FUNCTION
DIGITAL TUNE
NORMAL
2-WAY JUMP SWITCH FUNCTION
T3A T3B T4
Xt5
Xt6
Xt3
3-WAY TERMINAL
4-WAY TERMINAL
RELIEF VAVLE
PWM PRESSURE
R
t
5
TB
XP6
XS6
COMP A
tbh2
Cn21
tbh1
Cn22
T61
T62
protection sensor
Plate heat exchanger freezeproof
protection sensor
Plate heat exchanger freezeproof
016':6:6'/26;
RED

Related product manuals