EasyManua.ls Logo

Maxum 2500SCR - Engine Electrical System

Default Icon
64 pages
Print Icon
To Next Page IconTo Next Page
To Next Page IconTo Next Page
To Previous Page IconTo Previous Page
To Previous Page IconTo Previous Page
Loading...
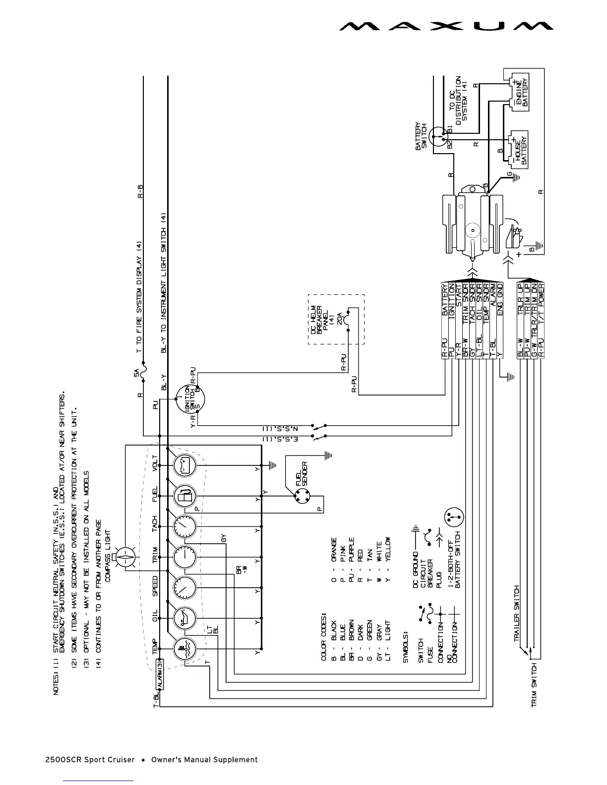
52 CHAPTER 12: ELECTRICAL SYSTEM
Engine Electrical System

Table of Contents

Related product manuals