EasyManua.ls Logo

McQuay M5ACV 030 CR - Page 81

McQuay M5ACV 030 CR
99 pages
Print Icon
To Next Page IconTo Next Page
To Next Page IconTo Next Page
To Previous Page IconTo Previous Page
To Previous Page IconTo Previous Page
Loading...
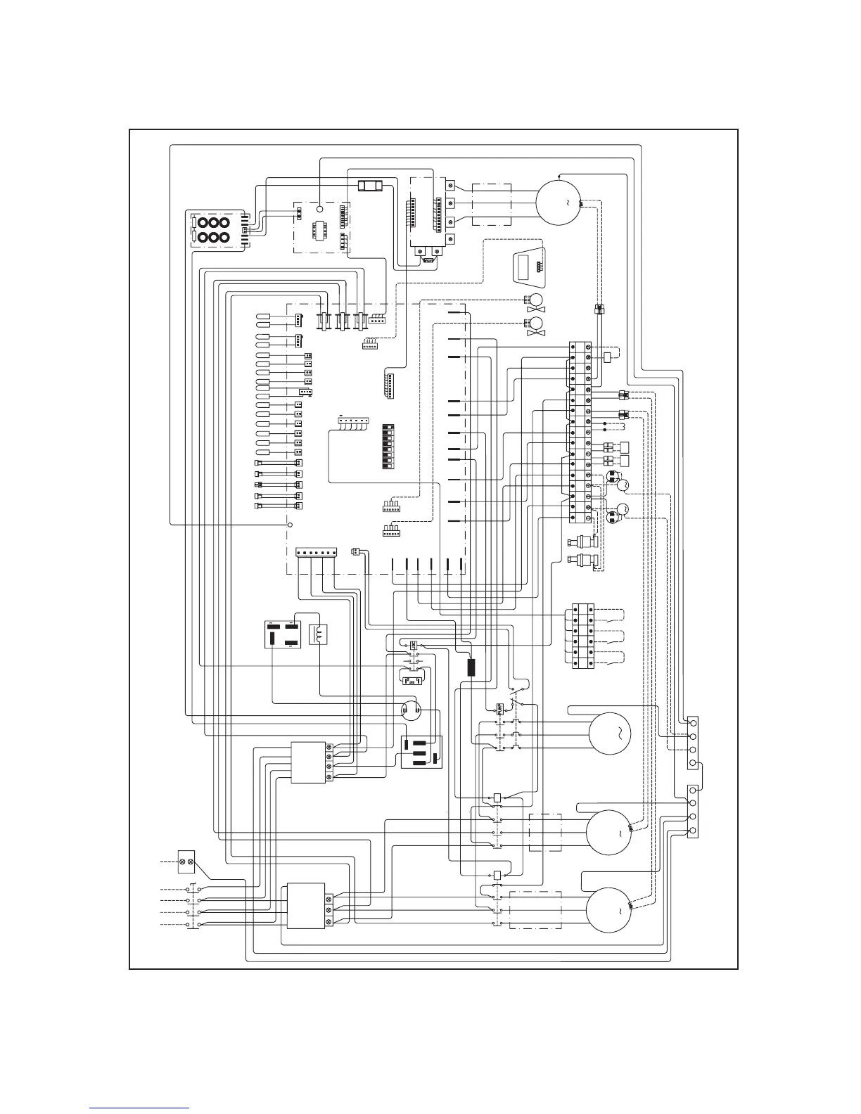
Model : M5ACV 100/135CR
79
zH05/HP3/V514
N3L2L1L
EP
1BT
ROTALOSI
HCTIWS
RED
WHITE
BLACK
BLUE
NTSR
A
B
C
G
A'
B'
C'
A
B
C
G
N
A'
B'
C'
N'
1RTF
)A05(
RTF
)A52(
123L2L1L
223T2T1T
RED
WHITE
BLACK
YELLOW/GREEN
YELLOW/GREEN
1PC
2A
1A
2PC
2A
1A
123L2L1L
3T2T1T
22
RED
WHITE
BLACK
EPEP
U
V
W
U
V
W
2PC1PC
5BT4BT
RED
WHITE
BLACK
YELLOW/GREEN
U
V
W
PMUP
2BT
3L2L1L
RF
3T2T1T
2A
1A
69
59
89
79
T
R
S
BR-3P
+
-
PFC
12
3L2L1L
3T2T1T
2A
1A
BR-1P
+
BLAL
L
LBRBLBROLBDR
C/HC/H
MRALAFFO/NOFFO/NO MRALA
MRALAFFO/NOLOOC/TAEH
2CSF1CSF
3BT
1MF2MF
2FC
Fu52
1FC
Fu52
1
2
1
2
2VW41VW4
H-PB
H-UA
N2VW4N1VW41-1-F2-1-FN2-2-F1-2-F
N
NH-UALIOB1H-CC2H-CC3H-CCH-PB
CAPACITOR BOARD
REWOP
DRAOB
DC2-
DC1-
DC-
JP-DC
DC2+
DC1+
DC+
1VE
2VE
DCL
YALPSID
YELLOW/GREEN
RED
WHITE
BLACK
EP
U
V
W
PC
NI-CD
REWOP-PJ
TUO-CD
EP
UF
1MWP
DRAOB MPI
R404820 MPI
1 REWOP
WVU
N
P
C
4WV1
4WV2
BP-H
JDC
AU-H
PUMP
BOILER
CC-H1
CP1
CP2
R-PHASE
ESAHP
2-2-NAF
ESAHP-R
2-1-NAF
1-1-NAF
1-2-NAF
TSR-J
N
R
S
T
EP
1-EV1
2-EV2
8KJ
1WS
1
8
BL BR BL OR BL RD
41PJ
HC
MRALA
FFO/NO
1PJ
JP13
JP-POWER1
L1 FL2 FL1
>DRAOB NIAM<
R301
090 CI
4KJ1KJ2KJ
J 3K
7KJ
2PJ8PJ
J 4P
5PJ
7PJ
6PJ
3PJ
J1P 7
81PJ
91PJ
02PJ
11PJ
9PJ
WLF1PH2PL
2PH
1PL
TOC1
TOC4
TCO3
TCD1
TCD3
TOC2
TBPE-1
TBPL-
1
TOA
TCS1
TCD1
TCS2
TWL
TWE
TBPL-2
TBPE-2

Related product manuals