EasyManua.ls Logo

McQuay WHR 017EW - Page 55

McQuay WHR 017EW
90 pages
Print Icon
To Next Page IconTo Next Page
To Next Page IconTo Next Page
To Previous Page IconTo Previous Page
To Previous Page IconTo Previous Page
Loading...
Product Manual WHR-2 55
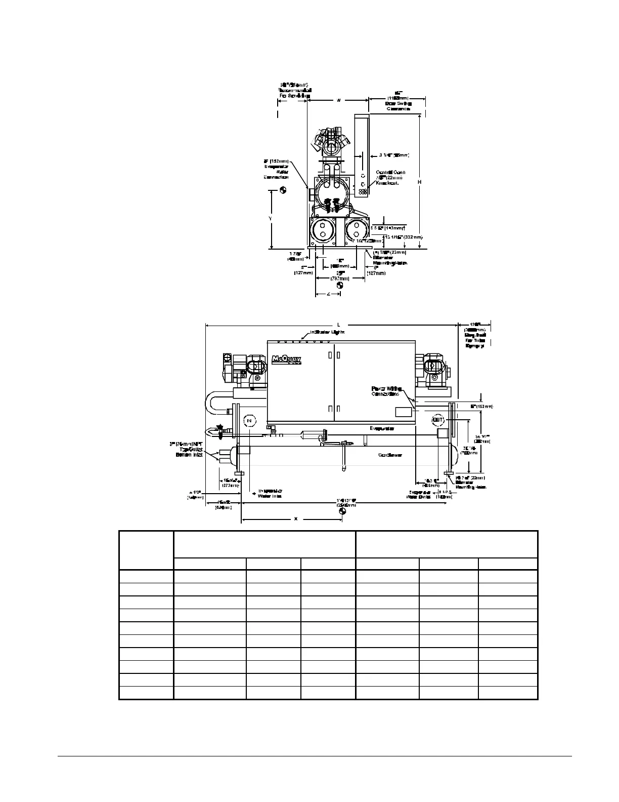
Figure 8, WHR 095EW through WHR 175EW
Maximum Overall
Dimensions
Center of
Gravity
WHR
MODEL
NUMBER
L W H X Y Z
095EW 142-3/4 (3626) 34 (864) 77 (1956) 55-1/4 (1403) 32-5/8 (829) 13-5/8 (346)
100EW 142-3/4 (3626) 34 (864) 77 (1956) 55-1/4 (1403) 32-5/8 (829) 13-5/8 (346)
110EW 142-3/4 (3626 34 (864) 77 (1956) 55-1/4 (1403) 32-5/8 (829) 13-5/8 (346)
115EW 142-3/4 (3626) 34 (864) 77 (1956) 55-7/8 (1419) 32-5/8 (829) 13-1/2 (343)
120EW 142-3/4 (3626) 34 (864) 77 (1956) 56-1/8 (1419) 32-5/8 (829) 13-1/2 (343)
130EW 142-3/4 (3626) 34 (864) 77 (1956) 56-1/8 (1426) 32-7/8 (835) 13-1/2 (343)
145EW 142-3/4 (3626) 34 (864) 77 (1956) 56-5/8 (1438) 32-5/8 (835) 13-1/2 (343)
155EW 142-3/4 (3626) 34 (864) 77 (1956) 56-1/4 (1429) 33-1/2 (845) 13-3/8 (340)
165EW 142-3/4 (3626) 34 (864) 77 (1956) 56-1/4 (1429) 33-1/2 (845) 13-3/8 (340)
175EW 142-3/4 (3626) 34 (864) 77 (1956) 56-1/4 (1429) 33-1/2 (845) 13-3/8 (340)
Note: Control box size: 76” (1930mm) L x 38½” (978mm) H x 7¼” (184mm) D.

Related product manuals