EasyManua.ls Logo

Midea MGBT-F250W/RN1 - Mgbt-D60 W;Rn1

Midea MGBT-F250W/RN1
213 pages
Print Icon
To Next Page IconTo Next Page
To Next Page IconTo Next Page
To Previous Page IconTo Previous Page
To Previous Page IconTo Previous Page
Loading...
Aqua tempo power series tropical air-cooled scroll chiller 50Hz MCAC-ATSM-2014-09
38
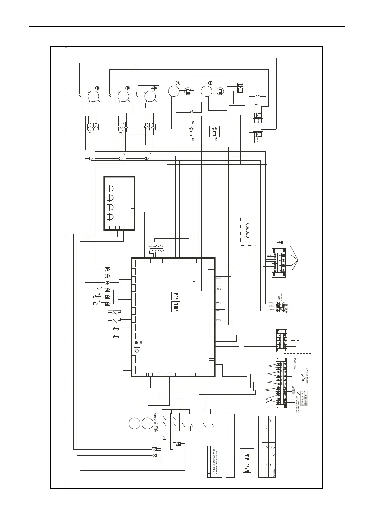
4.3 MGBT-D60W/RN1
Attached picture (I) Electric Drawing of Main Unit and Auxiliary Unit
XP8
XP7
XS8
XS7
T
3
B
T
3
A
HEAT_A1
PMV(B)
QUERY
CN18(WHITE
POWER
CN20RED
TRANS IN
PWM
CN17
CN15WHITE
CN9WHITE
COMP.B2 COMP.A2
COMP.A1 S.V(A)
CN24
PUMP
CN16
ALARM
CN8WHITE
ANTI-FREEZING
CN3YELLOW
PH_PRO
CN2(RED)
PMV(B)
COM(I)
COM(O)
CN6
CN27 CN10 CN22 CN32
CN14
PMV(A)
CN11RED
POWER OUT
FANA
CN30
FANB
CN31
( Y ELLO W)
(RED)
COMP B
2
1
5
21
3
6
22
4
T3
A1
A2
T2
T1
HEAT_B
ORAN GE
H2 P 1 P2H1
XT4
S1
SW3
ICOMP-B2
XT 5
XT 6
R
T
6
R
T
7
CN23(WHITE)
ON/OFF
RT4
RT5
COMP A1
2
5
21
3
6
22
4
T3
A1
A2
T2
T1
FAN B
( U)
( V)
( W)
( U)
( V)
( W)
Y&G
4-WAY TERMINAL
XT1
P O W E R I N
Y&G
S1
16 -WAY DAI L SW ITCH F UN CTION
DA IL SWITCH
AD DRE SS
BLUE
WHITE
RED
RED
WHITE
BL UE
BL ACK
4- WAY
TE RMI NA L
HEAT
PUMP
BLU EBLU EBLU E
BLU E
YELLOW
YEL LOW
EFFEC T ON NO .0 M OD ULE
(ON/OFF SIGNAL!)
ELE CTR IC EX PAN SIV E
VAL VE( B )
I N - L E T W A T E R T E M P . S E N S O R
A N T I - F R E E Z I N G T E M P . S E N S O R
RED BLACK
C O N DENSER
T E M P B
C O N D E NS ER
T E M P A
TOTAL OUT-LET WATER TEMP.
UN IT OUT-LET WATER TEMP.
CR ANK
COMPRESSOR A1
Y& G
ORANGE
BLACK
WHITE
BLUE
RED
RED
BLUE
RED
WH ITE
CR ANK
COMPRESSOR B
RED
AC CONTACTOR
BLACK
WHITE
BLUE
RED
BLUE
RED
WH ITE
Y& G
Y& G
S.V (A)
4-V ALVE A
S.V (B)
4-V ALVE B
M ID D L E
W IR E J O IN T
M ID D L E
W IR E J O I NT
OR ANGE
PURPLE
BLUE
M ID D L E
W IR E J O I NT
X T7
RED
WHITE
BLUE
RED
BLACK
BLUEBLUEBLUE
BLUE
YELLOW
YELLOW
BLUE
PURP LE
RED
XP9XP9
T
4
WHIT E
Q
P
(E)
GRAY
7- WAY
TE RMI NA L
XT 2
Y
E
L
L
O
W
B
L
A
C
K
LO W VO LT AGE SIGNA L
DO N'T CO NNECT HIG H VOLTAG E!
G
R
A
Y
GRAY
W1 W2
Q
P
(E)
B
L
A
C
K
R
E
D
P RO V ID E
B Y U SE R
AC CONTACTOR
CN5
H&L_PRO
CN1(WHIITE)
PMV(A)
CN28(RED)
HEAT/COOL
CN4RED
WATER_PRO
CN21 CN26 CN33 CN35CN34
1 2 3
ON
3 4
SW2
1 2
OFF
T3A T3B T4 ICOMP- A2ICOMP- A1 ICOMP-B1
CN7
(BLUE)
HEAT
CN12BLACK
COMP.B1 S.V(B)
RED
CN19WHITE
TRANS OUT
L_P RO(2B)
H_P RO(B)
K1( B)
L_P RO(2A )
H_P RO(A)
CUR RENT( A2)
ORANGE
RED
H IG H P R E SS U RE
P RO T EC T O R B
L OW P RE S SU R E
P RO T EC T OR 2 B
PURPLE
L OW P RE S S UR E
P RO T EC T OR 2 A
YELLOW
H IG H P R E SS U RE
P RO T EC T OR A
T EM P P R O TE C TO R
S WI T CH A 2
T EM P P R O TE C TO R
S WI T CH B 1
K1( A1)
T EM P P R O TE C TO R
S WI T CH A 1
K1( A2)
CUR RENT(B 1)
CUR RENT( A1)
XS9
L_P RO(1B)
L_P RO(1A )
RED
L OW P RE S SU R E
P RO T EC T OR 1 B
PURPLE
L OW P RE S S UR E
P RO T EC T OR 1 A
MAIN BOARD
CURRENT BOARD
L2L3L4 L1
CN6
CN7
CN8
CN5
CN4
HEAT_A2
COMP A2
2
5
21
3
6
22
4
T3
A1
A2
T2
T1
( U)
( V)
( W)
CR ANK
COMPRESSOR A2
RED
BLACK
WHITE
BLUE
RED
BROWN
BLUE
RED
WH ITE
Y& G
AC CONTACTOR
HIGH
BLUE
HIGH
FAN A
Y& G
L3
L1
L2
PWM PRESSURE
RELIF VALVE
BROWN
LOW
BROWN
BLACKBLACK
BLUE
RED
RED
BLACK
RED
BROWN BLUE
BROWN
BROWN
BLUE
WHITE
BLACK
WHITE RED
BLACK
BLUE
S2 ON:COOL ONLY OFF:R&C
S3 ON:DIGITAL OFF:FIXED
S4 ON:H-EEPROM OFF:NORMAL
S5 ON:C-EEPROM OFF:NORMAL
S7 ON:REMOTE CONTROL OFF:WIRE CONTROL
S8 ON:LOW TEMP.MODE OFF:NORMAL
S9 ON:30KW OFF:65/130/200/260KW
S2 S3 S4 S5 S7 S8 S9
B
R
O
W
N
R
E
D
RED
ORANGE
ORANGE
O U T D O OR W I RI N G DI A G R A M
R
E
D
B
L
U
E
SW3
1 2 3
ON
3 4
SW2
1 2
ON
S2 S3 S4 S5 S7 S8 S9
SW2/SW3 FUCTION DEFINATION
ON
OFF
P RO V ID E
B Y U SE R
DEFAULT SETTING
REMOTE TURN OFF
OFF
ON/OFF
S7
ON
REMOTE FUCTION SETTING
REMOTE COOL
ON OFF
REMOTE HEAT
ON OFF
(ON/OFF SIGNAL!)

Table of Contents

Other manuals for Midea MGBT-F250W/RN1

Related product manuals