EasyManua.ls Logo

Midea MGBT-F250W/RN1 - Mgbt-F250 W;Rn1

Midea MGBT-F250W/RN1
213 pages
Print Icon
To Next Page IconTo Next Page
To Next Page IconTo Next Page
To Previous Page IconTo Previous Page
To Previous Page IconTo Previous Page
Loading...
MCAC-ATSM-2014-09 Aqua tempo power series tropical air-cooled scroll chiller 50Hz
47
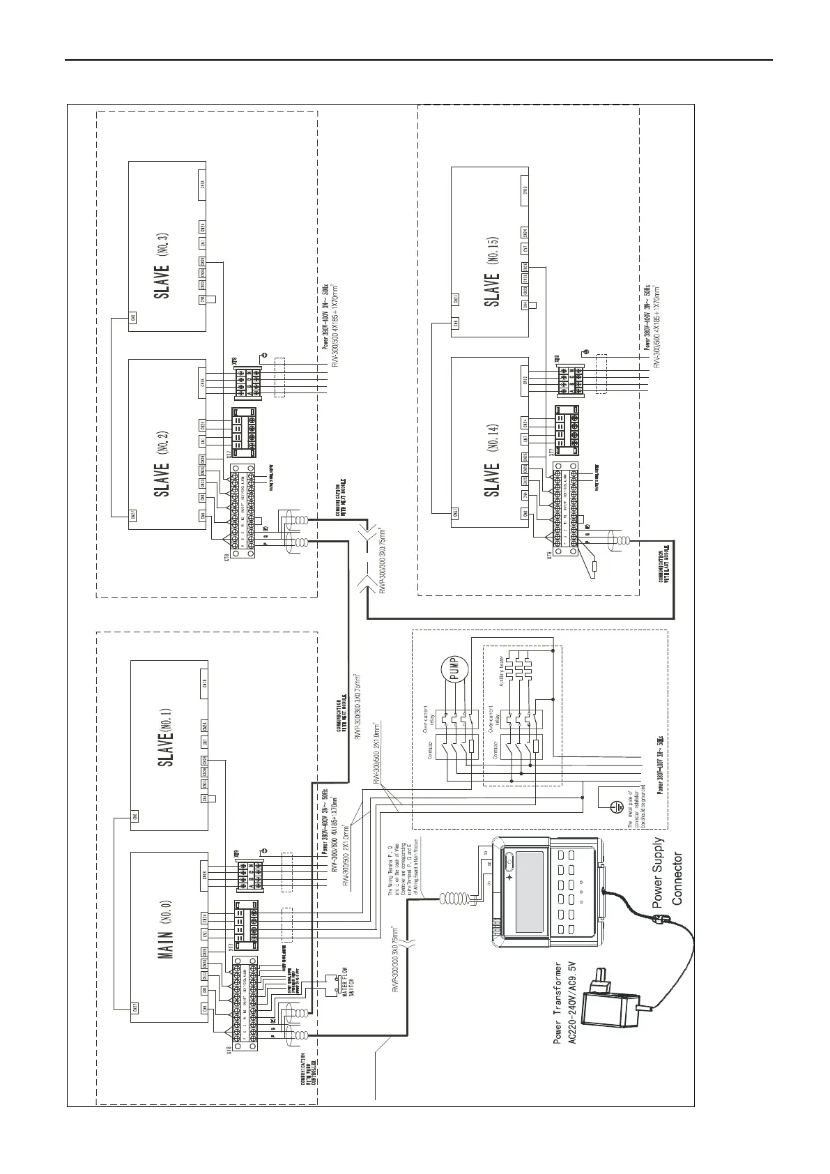
5.6MGBT-F250W/RN1
Attached Drawing (II) Networking Communication Schematic of Main Unit and Auxiliary Unit
A B
C
N
The length o f wire
should be s h o r ter
than 50 0 m
Black
Yellow
Gray
Notes
The wiring diagram of auxiliary heater and
pump is just for reference ,please follow the
instructions of corresponding auxiliary
heater products.
Please choose such accessory as power
wire , switch of auxiliary heater according to
the actual parameter of products and national
H2 P1 P 2H1
H2 P1
P2H1
H2 P1 P2H1
120Ω

Table of Contents

Other manuals for Midea MGBT-F250W/RN1

Related product manuals