EasyManua.ls Logo

Midea MGBT-F250W/RN1 - Networking Communication Wiring Diagram; Mgbt-F25 W;Rn1, Mgbt-D25 W;Rn1, Mgbt-F30 W;Rn1, Mgbt-D30 W;Rn1

Midea MGBT-F250W/RN1
213 pages
Print Icon
To Next Page IconTo Next Page
To Next Page IconTo Next Page
To Previous Page IconTo Previous Page
To Previous Page IconTo Previous Page
Loading...
Aqua tempo power series tropical air-cooled scroll chiller 50Hz MCAC-ATSM-2014-09
42
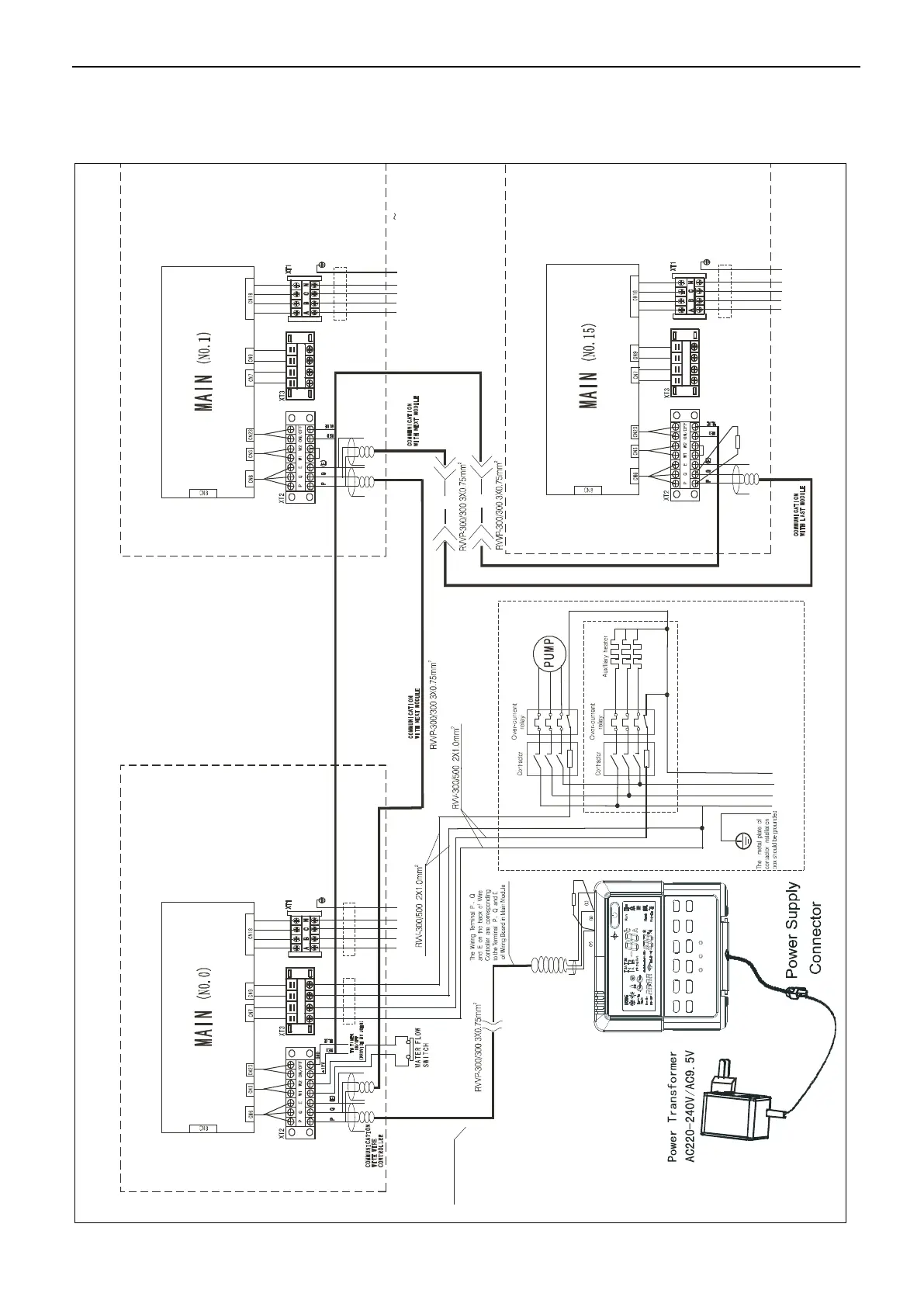
5 Networking communication wiring diagram
5.1 MGBT-F25W/RN1, MGBT-D25W/RN1, MGBT-F30W/RN1, MGBT-D30W/RN1
Attached Drawing (II) Networking Communication Schematic of Main Unit and
Auxiliary Unit
A B
C
N
H 2 P 1 P 2H 1
T h e l e n gth o f w i r e
s h o u l d b e s h o rte r
t h a n 5 0 0 m
100Ω
Black
Yellow
Gray
Quer y
Fault
N o t e s
The w iring d i a g ram o f a u x iliary h eater a n d
pum p is j u s t for r e fe r ence ,plea s e f o l l o w th e
in s truc t i o n s o f c o rresp onding a u x iliary
h e a ter p r o d u c ts.
P leas e c h oose s u c h a cce s s o r y a s p o w er
wire , s w itc h o f a u x iliary h e a ter a c c o r d ing t o
th e actu a l p aram e t e r o f p ro d u c t s a n d n a t i ona l
H 2 P 1 P 2H 1
H 2 P 1 P 2H 1
120Ω
RVV-300/500 4X10+1X6mm
2
RVV-300/500 4X10+1X6mm
2
RVV-300/500 4X10+1X6mm
2
POWER 380V 3N 50Hz
POWER 380V 3N~
50Hz
POWER 380V 3N~50Hz
POWER 380V 3N~50Hz

Table of Contents

Other manuals for Midea MGBT-F250W/RN1

Related product manuals