EasyManua.ls Logo

Midea MLCAC-UTSM-2010-10 - Dimensions

Midea MLCAC-UTSM-2010-10
95 pages
Print Icon
To Next Page IconTo Next Page
To Next Page IconTo Next Page
To Previous Page IconTo Previous Page
To Previous Page IconTo Previous Page
Loading...
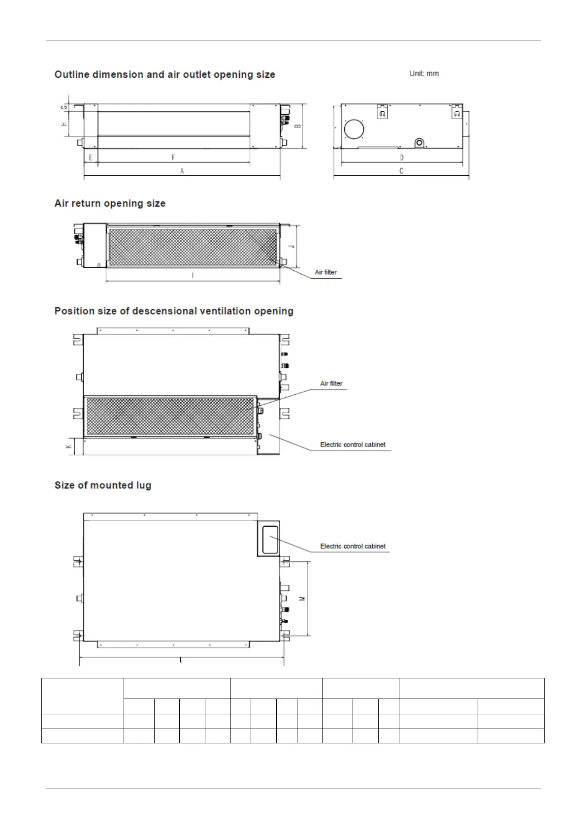
Dimensions MLCAC-UTSM-2010-10
22 Duct Type
2. Dimensions
Capacity
(KBtu)
Outline
dimension(mm)
Air outlet o
pening size
Air return
opening size
Size of outline dimension mounted
plug
A B C D E F G H I J K L M
MTB-36HWDN1 1140 270 775 710 65 933 35 179 1035 260 20 1180 490
MTB-48HWDN1 1200 300 865 800 80 968 40 204 1094 288 45 1240 500

Related product manuals