EasyManua.ls Logo

Midea MLCAC-UTSM-2010-10 - Electric Characteristics; Sound Levels

Midea MLCAC-UTSM-2010-10
95 pages
Print Icon
To Next Page IconTo Next Page
To Next Page IconTo Next Page
To Previous Page IconTo Previous Page
To Previous Page IconTo Previous Page
Loading...
Electric Characteristics MLCAC-UTSM-2010-10
62 Ceiling & Floor Type
6. Electric Characteristics
Model
Indoor Unit Power Supply
Hz
V
oltage Min Max MF
A
MUB-36HRDN1 50 220~240 198 254 15
MUB-48HRDN1 50 220~240 198 254 15
Remark:
MFA: Max. Fuse Amps. (A)
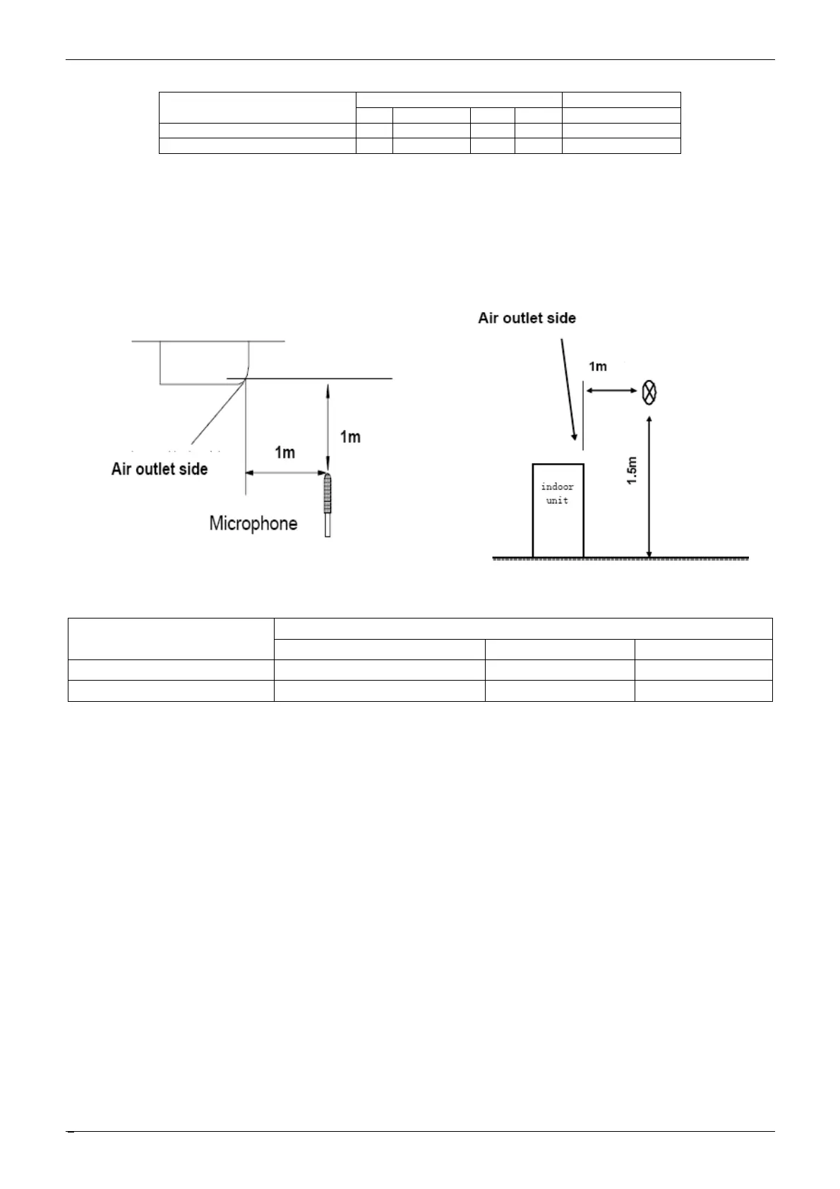
7. Sound Levels
Ceiling Floor
Model
Noise level dB(A)
H M L
MUB-36HRDN1 45 43 40
MUB-48HRDN1 47 46 44

Related product manuals