EasyManua.ls Logo

Midea MLCAC-UTSM-2010-10 - Water Drainage

Midea MLCAC-UTSM-2010-10
95 pages
Print Icon
To Next Page IconTo Next Page
To Next Page IconTo Next Page
To Previous Page IconTo Previous Page
To Previous Page IconTo Previous Page
Loading...
MLCAC-UTSM-2010-10 Water Drainage
Installation 101
4. Water Drainage
4.1 Gradient and Supporting
1). Keep the drainpipe sloping downwards at a gradient of at least 1/50. Keep the drainpipe as short as possible and eliminate the air bubble.
2). The horizontal drainpipe should be short. When the pipe is too long, a prop stand must be installed to keep the gradient of 1/50 and
prevent bending. Refer to the following table for the specification of the prop stand.
Diameter Distance between the prop stands
Hard PVC pipe 25~40mm 1.5~2m
3). Precautions
 The diameter of drainpipe should meet the drainage requirement at least.
 the drainpipe should be heat-insulated to prevent atomization.
 Drainpipe should be installed before installing indoor unit. After powering on, there is some water in water-receiver plate. Please check if the
drain pump can operate correctly.
All connection should be firm.
 Wipe color on PVC pipe to note connection.
 Climbing, horizontal and bending conditions are prohibited.
 The dimension of drainpipe can’t less than the connecting dimension of indoor drainpipe.
 Heat-insulation should be done well to prevent condensation.
 Indoor units with different drainage type can’t share one convergent drainpipe.
4.2 Drainpipe Trap
1). If the pressure at the connection of the drainpipe is negative, it needs to design drainpipe trap.
2). Every indoor unit needs one drainpipe trap.
3). A plug should be designed to do cleaning.
Plug
5
0
c
m
5
0
c
m
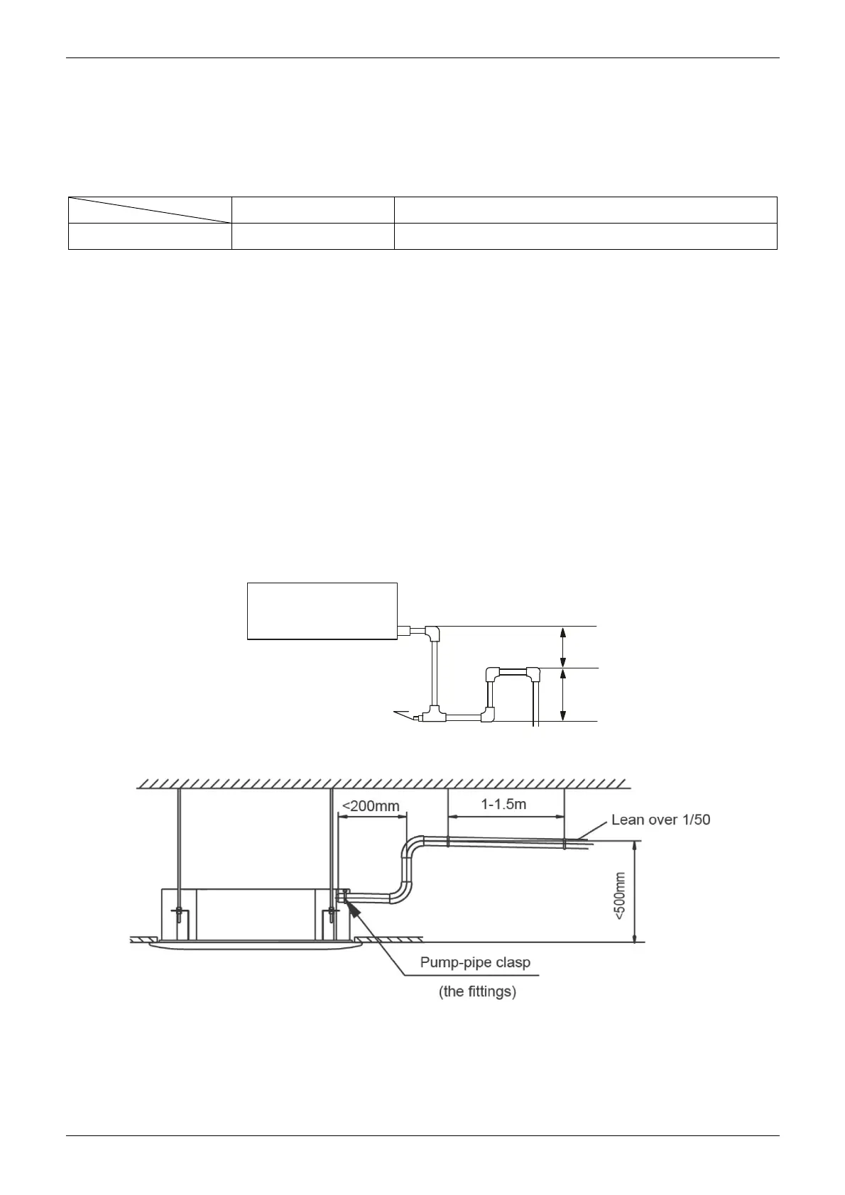
4.3 Upwards drainage (drain pump)
For Four-way cassette(compact)

Related product manuals