EasyManua.ls Logo

Midea MLCAC-UTSM-2010-10 - Wiring Diagrams

Midea MLCAC-UTSM-2010-10
95 pages
Print Icon
To Next Page IconTo Next Page
To Next Page IconTo Next Page
To Previous Page IconTo Previous Page
To Previous Page IconTo Previous Page
Loading...
MLCAC-UTSM-2010-10 Wiring Diagrams
Outdoor Units 71
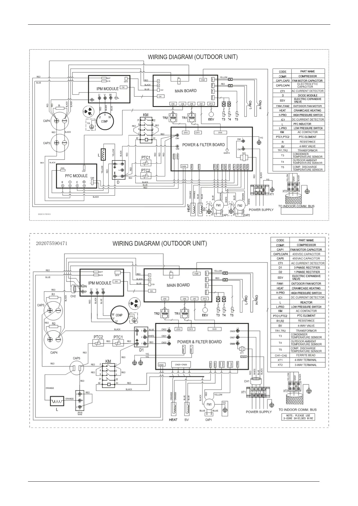
4. Wiring Diagrams
MOUB-36HDN1-Q MOU-48HDN1
MOUB-36HDN1-R

Related product manuals