EasyManua.ls Logo

Midea MLCAC-UTSM-2010-10 - Page 34

Midea MLCAC-UTSM-2010-10
95 pages
Print Icon
To Next Page IconTo Next Page
To Next Page IconTo Next Page
To Previous Page IconTo Previous Page
To Previous Page IconTo Previous Page
Loading...
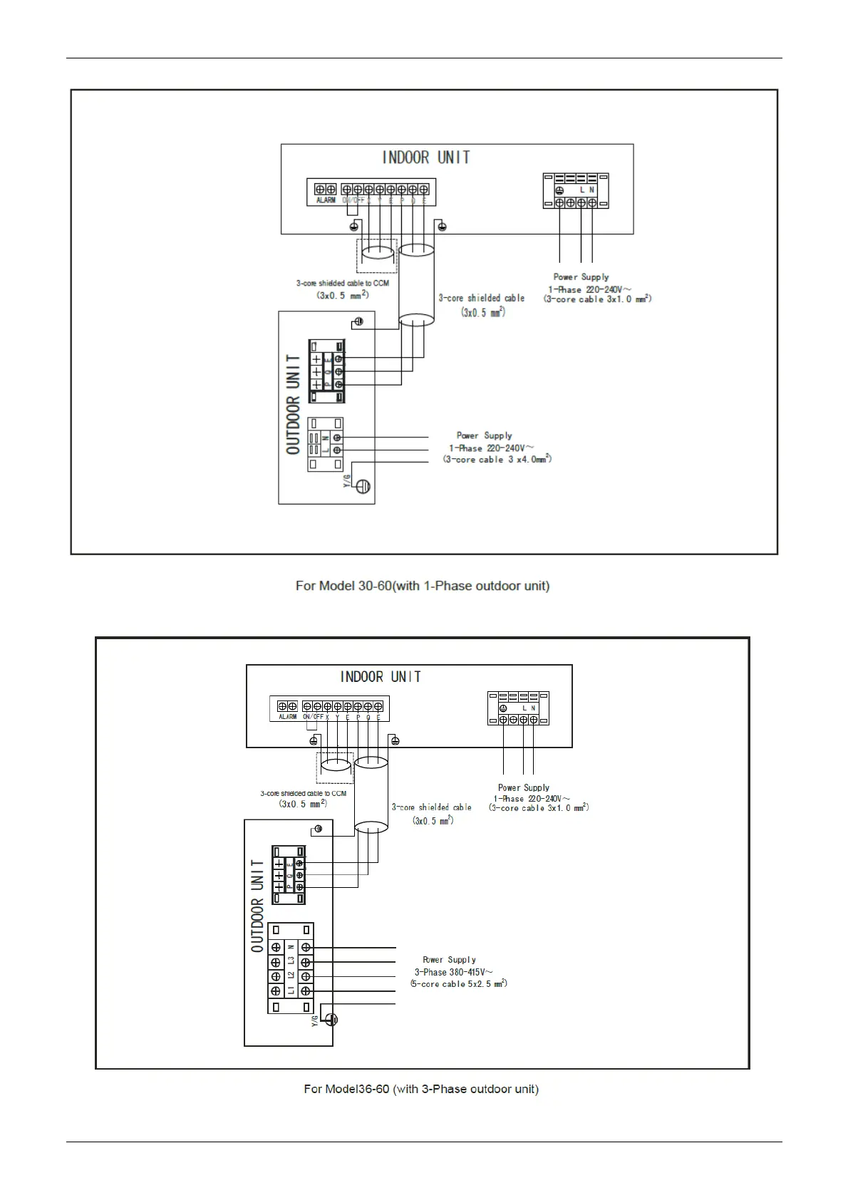
Field Wiring MLCAC-UTSM-2010-10
30 Duct Type
Air-conditioner link-circuit.

Related product manuals