EasyManua.ls Logo

Midea MLCAC-UTSM-2010-10

Midea MLCAC-UTSM-2010-10
95 pages
To Next Page IconTo Next Page
To Next Page IconTo Next Page
To Previous Page IconTo Previous Page
To Previous Page IconTo Previous Page
Loading...
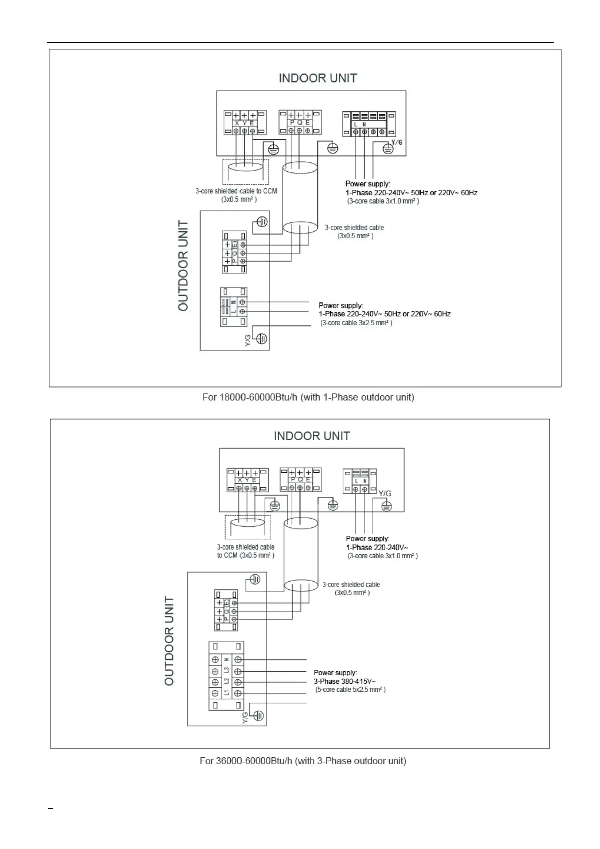
Field Wiring MLCAC-UTSM-2010-10
66 Ceiling & Floor Type

Related product manuals