EasyManua.ls Logo

Midea MTB1T-96CWN1 - Installation of Floor-Standing Type Indoor Units

Midea MTB1T-96CWN1
111 pages
Print Icon
To Next Page IconTo Next Page
To Next Page IconTo Next Page
To Previous Page IconTo Previous Page
To Previous Page IconTo Previous Page
Loading...
MCAC-UTSM-201707 Midea R410A T3 50Hz Top-discharge Series
56
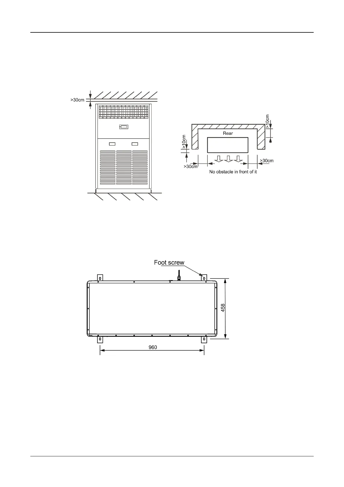
3. Installation of Floor-standing Type Indoor Units
As the following picture, when install the indoor unit, select the enough solid and level site,
ensure enough space required for installation and maintenance.
For anti-fall down, please adopt the following measures:
As the following the picture, fix the feet on the floor after select a proper place for
installation, since the height of the unit casing is very high.
The right and left sides as well as rear can be fixed.
(Unit: mm)
Note: Please be ware of the foot screws, which may be hurt for the passby people, make sure
enough security of that, prevent accident occure.
Put down the air intake panel, before electric connection, Following the picture:
Uncover the screw-cap in the air intake panel, and then lossen the screws.
Take off the air intake panel, ensure which place secure enough will not make risk to
the other people.

Related product manuals