EasyManua.ls Logo

Midea MTB1T-96CWN1 - Installation of Duct Type Indoor Units

Midea MTB1T-96CWN1
111 pages
Print Icon
To Next Page IconTo Next Page
To Next Page IconTo Next Page
To Previous Page IconTo Previous Page
To Previous Page IconTo Previous Page
Loading...
MCAC-UTSM-201707 Midea R410A T3 50Hz Top-discharge Series
52
2. Installation of Duct Type Indoor Units
2.1 Installating indoor units
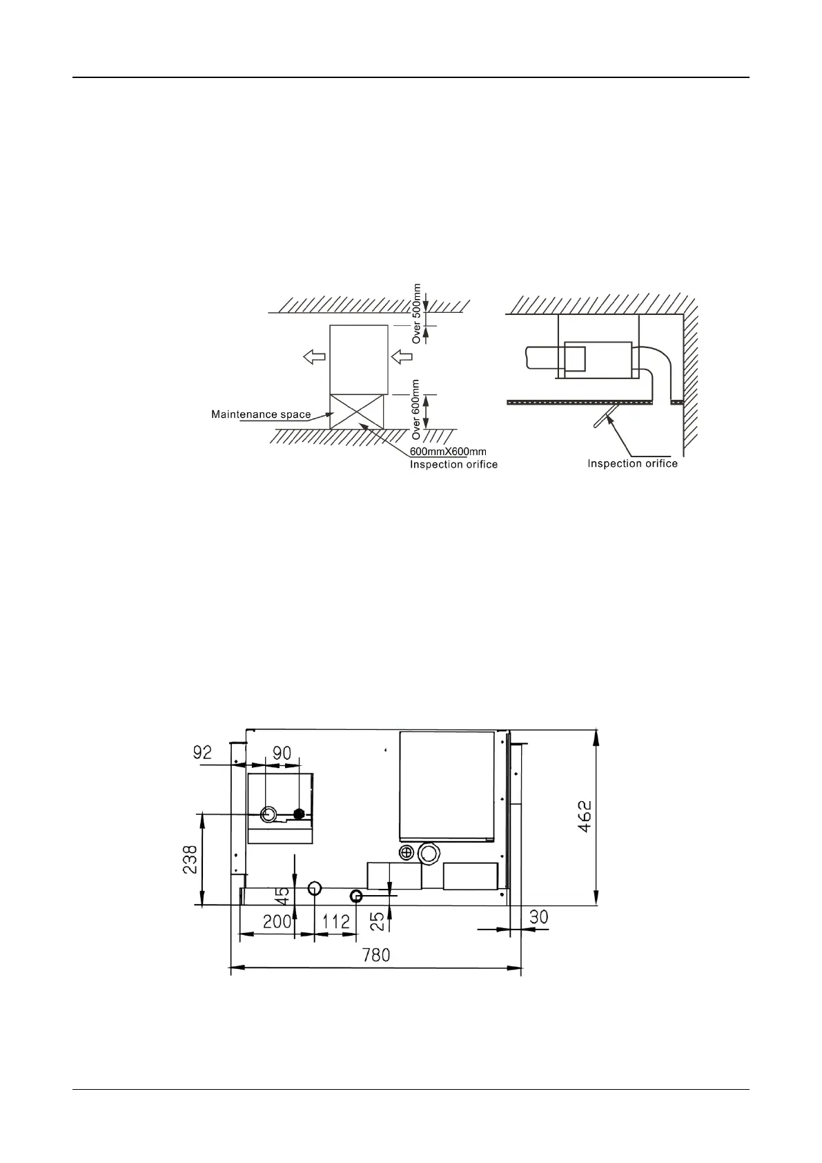
As the following picture, when install the indoor unit, select the enough solid and level site
with enough space for installation and maintenance.
The inspection orifice should be enough large to repair and maintenance the unit.
Use Ф10 or bigger screws. The screw material is high-quality carbon steel (whose surface is
zinc plated or undergoes other anti-rust treatment) or stainless steel.
The treatment of the ceiling varies between buildings. For detailed measures, consult with
the fitting-out staff.
Fix the pendant bolts firmly and reliably in light of the specific situation.
Installation of the pendant bolt in different environments.
MTB1T-96CWN1, MTB1T-96HWN1
MHB1T-96CWN1, MHB1T-96CWN1
(Unit: mm)
When the pendant bolt is fixed in wooden structure, please put rectanglar sticks across the
beams, and set pendant bolts.

Related product manuals