EasyManua.ls Logo

Midea MTB1T-96CWN1 - Page 62

Midea MTB1T-96CWN1
111 pages
Print Icon
To Next Page IconTo Next Page
To Next Page IconTo Next Page
To Previous Page IconTo Previous Page
To Previous Page IconTo Previous Page
Loading...
Midea R410A T3 50Hz Top-discharge Series MCAC-UTSM-201707
61
Use high-pressure nitrogen to clean the pipelines. Do not use the refrigerant of the outdoor unit
for cleaning.
Pipes size of the units:
Model
Liquid pipe
Gas pipe
MTB1T-96CWN1
MTB1T-96HWN1
MHB1T-96CWN1
MHB1T-96HWN1
MFA3T-96CRN1
MFA3T-96HRN1
Φ9.52mm
(pipe length L30m)
Φ25.4mm
(pipe length L30m)
Φ12.7mm
(pipe length
30<L50m)
Φ28.6mm
(pipe length
30<L50m)
Notes: The pipe joint for connecting pipes of different diameters is needed. If the pipe length is
not more than 30m, please use the straight pipe as the accessories in the indoor and outdoor
unit. If the pipe length is more than 30m, you should prepare it yourself.
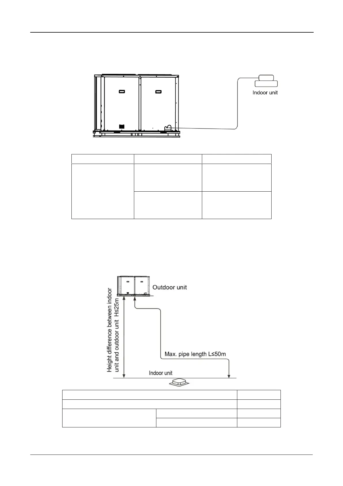
Allowed length of refrigerant pipe and height difference.
Allowed value
Max. actual length of pipe (L)
50m
Max. height difference between indoor
and outdoor unit
Outdoor unit (upper)
25m
Outdoor unit (lower)
30m
Do not increase or decrease piping sizes.

Related product manuals