EasyManua.ls Logo

Miele DG2740 - Side View

Miele DG2740
92 pages
Print Icon
To Next Page IconTo Next Page
To Next Page IconTo Next Page
To Previous Page IconTo Previous Page
To Previous Page IconTo Previous Page
Loading...
Installation
-
I
N
-
S
T
A
L
L
-
A
-
T
I
O
N
-
84
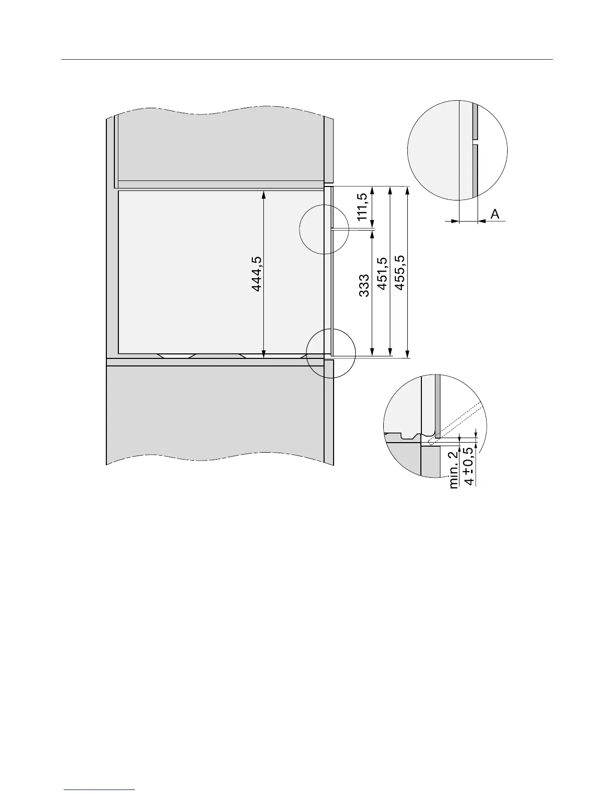
Side view
A Glass front: 22mm
Metal front: 23.3mm

Table of Contents

Related product manuals