EasyManua.ls Logo

Miele DGM 7340 - Side View

Miele DGM 7340
160 pages
Print Icon
To Next Page IconTo Next Page
To Next Page IconTo Next Page
To Previous Page IconTo Previous Page
To Previous Page IconTo Previous Page
Loading...
Installation
-
I
N
-
S
T
A
L
L
-
A
-
T
I
O
N
-
150
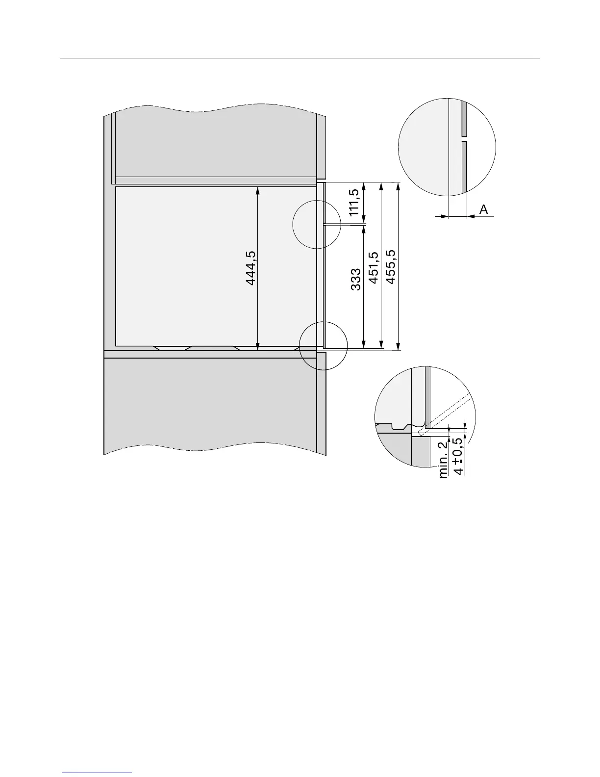
Side view
A Glass front: 22mm
Metal front: 23.3mm

Table of Contents

Other manuals for Miele DGM 7340

Related product manuals