EasyManua.ls Logo

Miele PDR 922 - Description of the Machine

Miele PDR 922
80 pages
Print Icon
To Next Page IconTo Next Page
To Next Page IconTo Next Page
To Previous Page IconTo Previous Page
To Previous Page IconTo Previous Page
Loading...
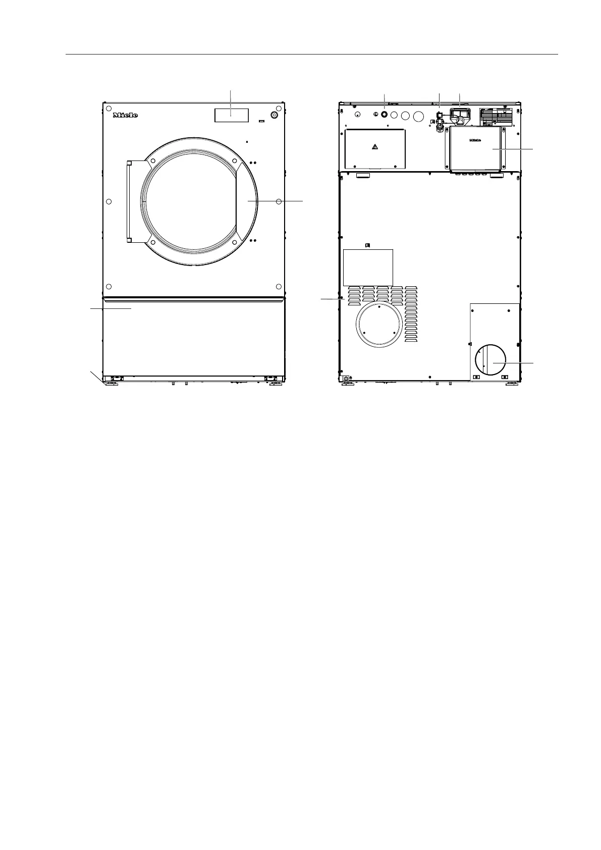
Description of the machine
13
a
Control panel with touch display
b
Door
c
Lint filter flap
d
4 height-adjustable screw feet
e
Electrical connection
f
Communication module slot
g
Intake vents for drying air
h
Exhaust duct
i
Connection for communication box
j
Communication box (optional)
For setting up a connection with external systems

Table of Contents

Related product manuals