EasyManua.ls Logo

Milkplan IC 50 - 14.2 Electrical Drawings

Milkplan IC 50
21 pages
Print Icon
To Next Page IconTo Next Page
To Next Page IconTo Next Page
To Previous Page IconTo Previous Page
To Previous Page IconTo Previous Page
Loading...
18
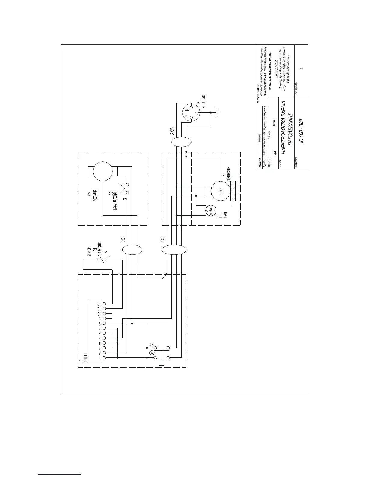
14.2 ELECTRICAL DRAWINGS
O
N
/
O
F
F

Related product manuals