EasyManua.ls Logo

Mircom TAS-2000 Series - NSL UNIT WIRING AND CONFIGURATION; 2008 M NSL Unit Wiring

Mircom TAS-2000 Series
73 pages
Print Icon
To Next Page IconTo Next Page
To Next Page IconTo Next Page
To Previous Page IconTo Previous Page
To Previous Page IconTo Previous Page
Loading...
Page 26
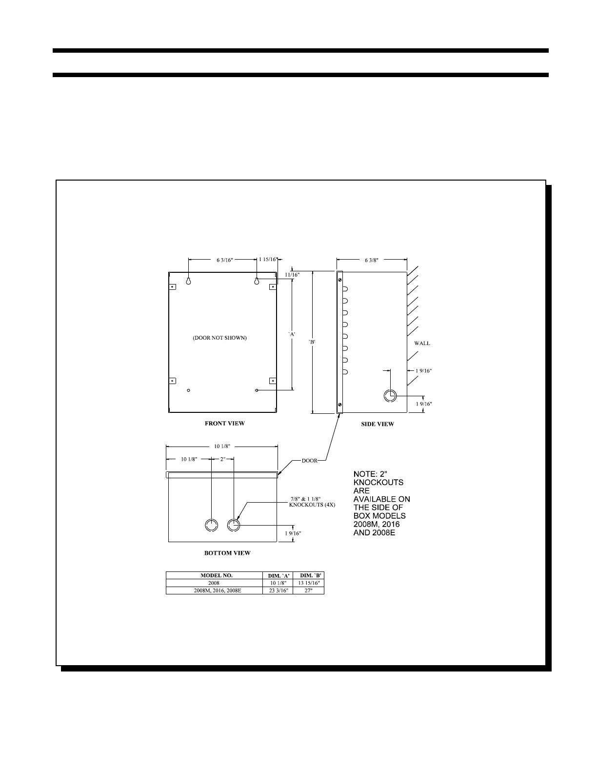
NSL & ELEVATOR UNIT ENCLOSURES MECHANICAL INSTALLATION
Both the NSL and Elevator Restriction Units are intended for mounting in the Electrical/Telephone Room of a Building. They come Factory
assembled in one of two enclosure sizes shown below. The 2008M NSL Unit includes the 27” enclosure. The 2008 includes the 13 15/16”
enclosure. The 2016 includes the 27" enclosure.
2008M NSL Unit 27" High Enclosure
2008 NSL Expander 13-15/16" High Enclosure
2016 NSL Expander 27" High Enclosure
2008E Elevator Unit 27" High Enclosure

Other manuals for Mircom TAS-2000 Series