EasyManua.ls Logo

Mitsubishi Electric A173UHCPU - Page 8

Mitsubishi Electric A173UHCPU
389 pages
To Next Page IconTo Next Page
To Next Page IconTo Next Page
To Previous Page IconTo Previous Page
To Previous Page IconTo Previous Page
Loading...
VII
(6) Usage methods
CAUTION
Immediately turn OFF the power if smoke, abnormal sounds or odors are emitted from the
control unit, servo amplifier or servomotor.
Always execute a test operation before starting actual operations after the program or
parameters have been changed or after maintenance and inspection.
The units must be disassembled and repaired by a qualified technician.
Do not make any modifications to the unit.
Keep the effect or magnetic obstacles to a minimum by installing a noise filter or by using
wire shields, etc. Magnetic obstacles may affect the electronic devices used near the control
unit or servo amplifier.
Use the units with the following conditions.
Item Conditions
Input power According to the separate instruction manual.
Input frequency According to the separate instruction manual.
Tolerable momentary
power failure
According to the separate instruction manual.
(7) Remedies for errors
CAUTION
If an error occurs in the self diagnosis of the control unit or servo amplifier, confirm the
check details according to the instruction manual, and restore the operation.
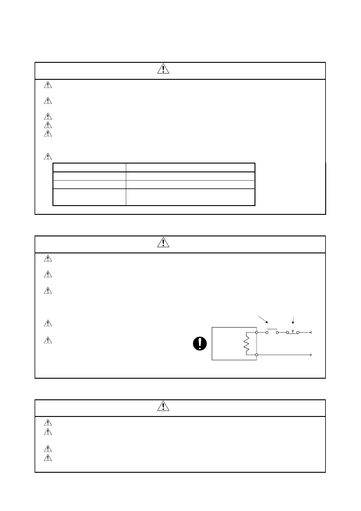
If a dangerous state is predicted in case of a power failure or product failure, use a
servomotor with magnetic brakes or install a brake mechanism externally.
Use a double circuit construction so that the
magnetic brake operation circuit can be
operated by emergency stop signals set
externally.
If an error occurs, remove the cause, secure
the safety and then resume operation.
The unit may suddenly resume operation
after a power failure is restored, so do not go
near the machine. (Design the machine so
that personal safety can be ensured even if
the machine restarts suddenly.)
Shut off with servo ON signal OFF,
alarm, magnetic brake signal.
Servo motor
Magnetic
brakes
RA1
EMG
24VDC
Shut off with the
emergency stop
signal(EMG).
(8) Maintenance, inspection and part replacement
CAUTION
Perform the daily and periodic inspections according to the instruction manual.
Perform maintenance and inspection after backing up the program and parameters for the
control unit and servo amplifier.
Do not place fingers or hands in the clearance when opening or closing any opening.
Periodically replace consumable parts such as batteries according to user's manual, or the
instruction manual for the product you are using.

Table of Contents

Other manuals for Mitsubishi Electric A173UHCPU

Related product manuals