EasyManua.ls Logo

Mitsubishi Electric A173UHCPU - 2.3.2 Safety Circuit Design

Mitsubishi Electric A173UHCPU
389 pages
To Next Page IconTo Next Page
To Next Page IconTo Next Page
To Previous Page IconTo Previous Page
To Previous Page IconTo Previous Page
Loading...
3. POSITIONING SIGNALS
3 50
(6) Test mode request error flag (M9078).............Signal sent from PCPU to SCPU
(a) This flag comes ON if the test mode is not established when a test mode
request is sent from a peripheral device
(b) When M9078 comes ON, the error contents are stored in the test mode
request error register (D9182, D9183).
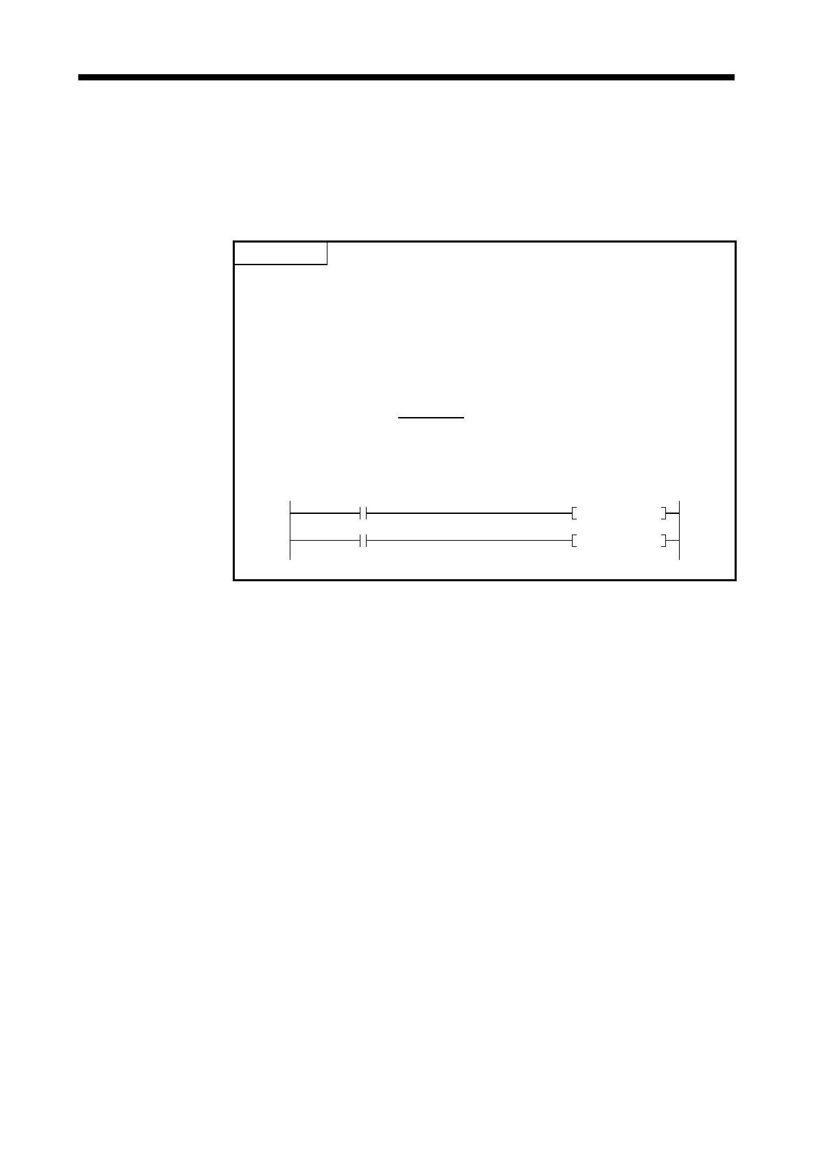
POINTS
(1) When an emergency stop signal (EMG) is input during positioning, the
feed current value is advanced within the rapid stop deceleration time set
in the parameter block. At the same time, the servo OFF status is
established because the all axes servo start command (M2042) goes
OFF. When the rapid stop deceleration time has elapsed after input of
the emergency stop signal, the feed current value returns to the value at
the point when the emergency stop was initiated.
(2) If the emergency stop is reset before the emergency stop deceleration
time has elapsed, a servo error occurs.
(3) If you do not want to establish the servo ON status immediately after an
emergency stop has been reset, include the following section in the
sequence program.
M0
All axes servo start command
execution signal
SET M2042
PLS M0
(7) Servo program setting error flag (M9079)............... Signal from PCPU to SCPU
This flag is used to determine whether the positioning data of the servo
program designated by the SVST instruction is normal or abnormal.
OFF......Normal
ON........Abnormal

Table of Contents

Other manuals for Mitsubishi Electric A173UHCPU

Related product manuals