EasyManua.ls Logo

Mitsubishi MELFA RV-2SDB-S15 - Page 67

Mitsubishi MELFA RV-2SDB-S15
150 pages
Print Icon
To Next Page IconTo Next Page
To Next Page IconTo Next Page
To Previous Page IconTo Previous Page
To Previous Page IconTo Previous Page
Loading...
3 Controller
Additional Axis Function 3-58
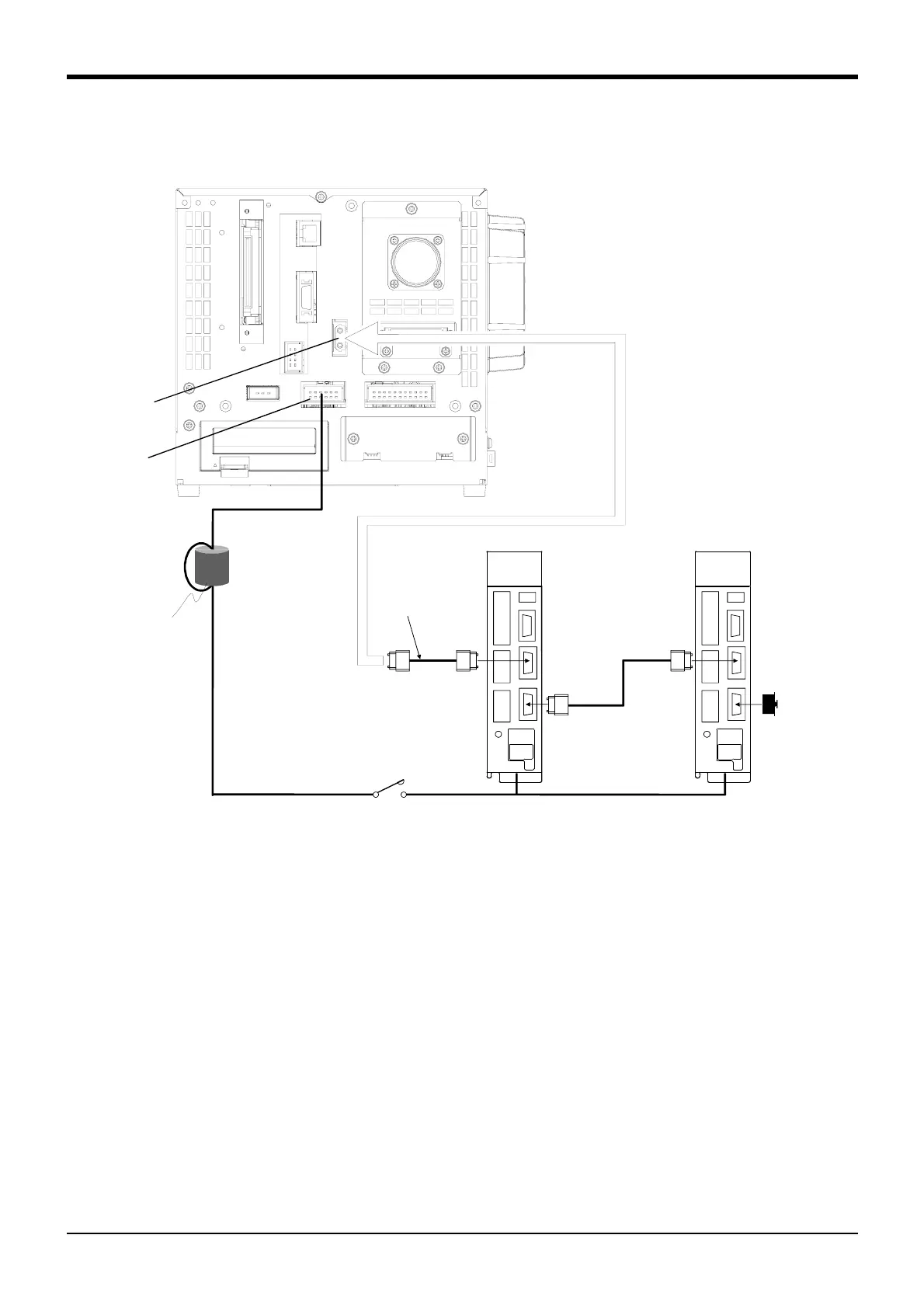
Fig.3-17 Example of addition axis connection (CR1DA-700 series)
<CR1DA-700 series>
OPTコネクタへ
電磁接触
EMGOUT
サーボア
CN1ACN1Bの接間違
える
と、通信きません
キャッ
サーンプ
CN1Aコネク CN1A
CN1Bコネクタへ
SSCNETⅢケーブル
SSCNET
CN1Bコ
OPT
フェライトコア
CE様のみ
回通し
Servo amplifier
Servo amplifier
SSCNET cable
SSCNET cable
CN1A connector
CN1A connector
OPT connector
CN1B connector
CN1B connector
Cap
Magnetic contact
*It cannot communicate, if connection of CN1A and CN1B is mistaken.
Ferrite core
(Only for the CE
specification)
Pass twice
* The figure isstandard specification.
(CE marking specification is the same.)

Related product manuals