EasyManua.ls Logo

Mitsubishi MR-J4-200A - Page 307

Mitsubishi MR-J4-200A
640 pages
Print Icon
To Next Page IconTo Next Page
To Next Page IconTo Next Page
To Previous Page IconTo Previous Page
To Previous Page IconTo Previous Page
Loading...
9 OUTLINE DRAWINGS
9 - 8
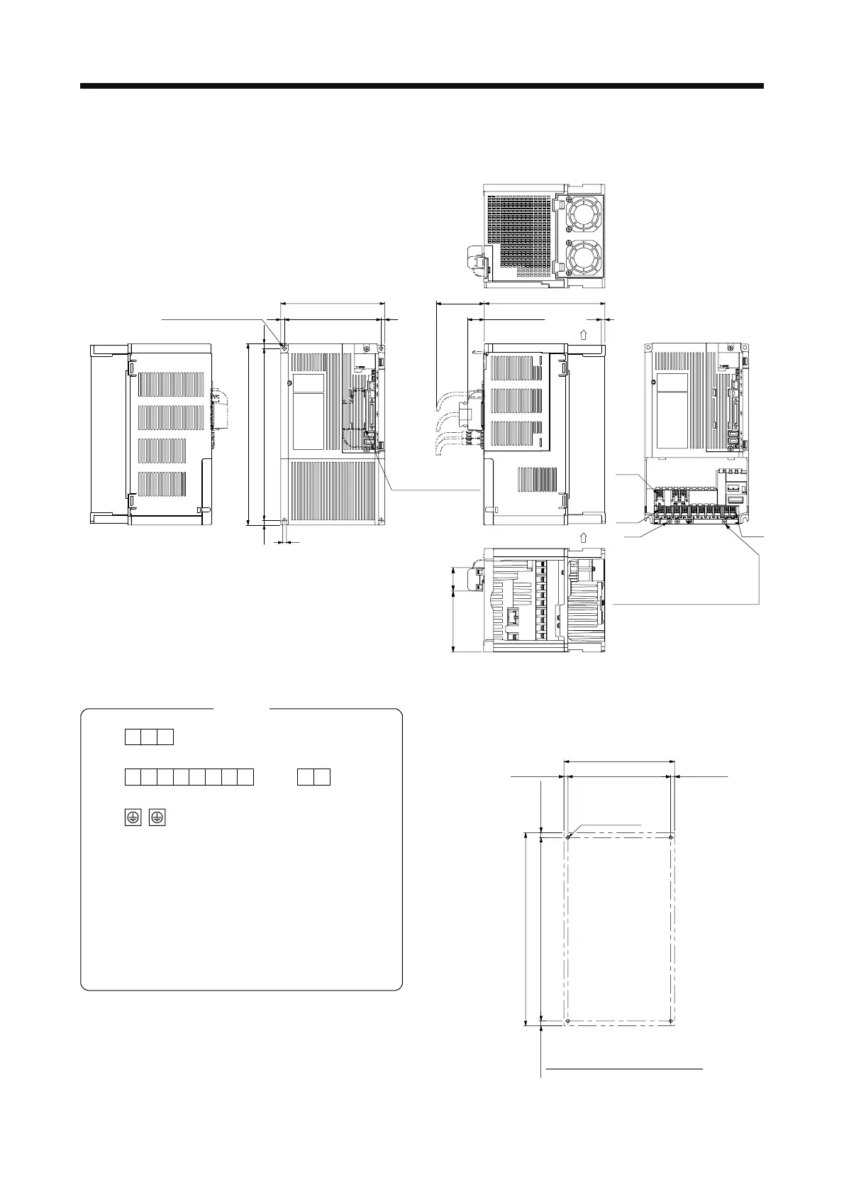
(g) MR-J4-700A(-RJ)
[Unit: mm]
172
160
6
6
7.5 285
6
200
Approx. 80
Approx. 28
Cooling fan
exhaust
Approx.
38.5
TE3
TE1
TE2
PE
6
300
7.5
2-φ6 mounting hole
Intake
Approx.
101
Built-in regenerative resistor
lead terminal fixing screw
Screw size: M4
Tightening torque: 1.2 [N•m]
With
MR-BAT6V1SET
Mass: 6.2 [kg]
TE1
TE2
PE
TE3
PE
N- P3 P4TE3
L2 L3L1 CP+
TE1
VWU
L11 L21TE2
Terminal
Screw size: M4
Tightening torque: 1.2 [N•m]
Screw size: M3.5
Tightening torque: 0.8 [N•m]
Screw size: M4
Tightening torque: 1.2 [N•m]
Screw size: M4
Tightening torque: 1.2 [N•m]
Mounting screw
Screw size: M5
Tightening torque: 3.24 [N•m]
160 ± 0.5
4-M5 screw
285 ± 0.5
Mounting hole process drawing
Approx. 7.5
A
pprox. 7.5
Approx. 300
Approx. 6 Approx. 6
Approx. 172

Table of Contents

Related product manuals