EasyManua.ls Logo

Mitsubishi MR-J4-200A - Page 412

Mitsubishi MR-J4-200A
640 pages
Print Icon
To Next Page IconTo Next Page
To Next Page IconTo Next Page
To Previous Page IconTo Previous Page
To Previous Page IconTo Previous Page
Loading...
11. OPTIONS AND AUXILIARY EQUIPMENT
11 - 81
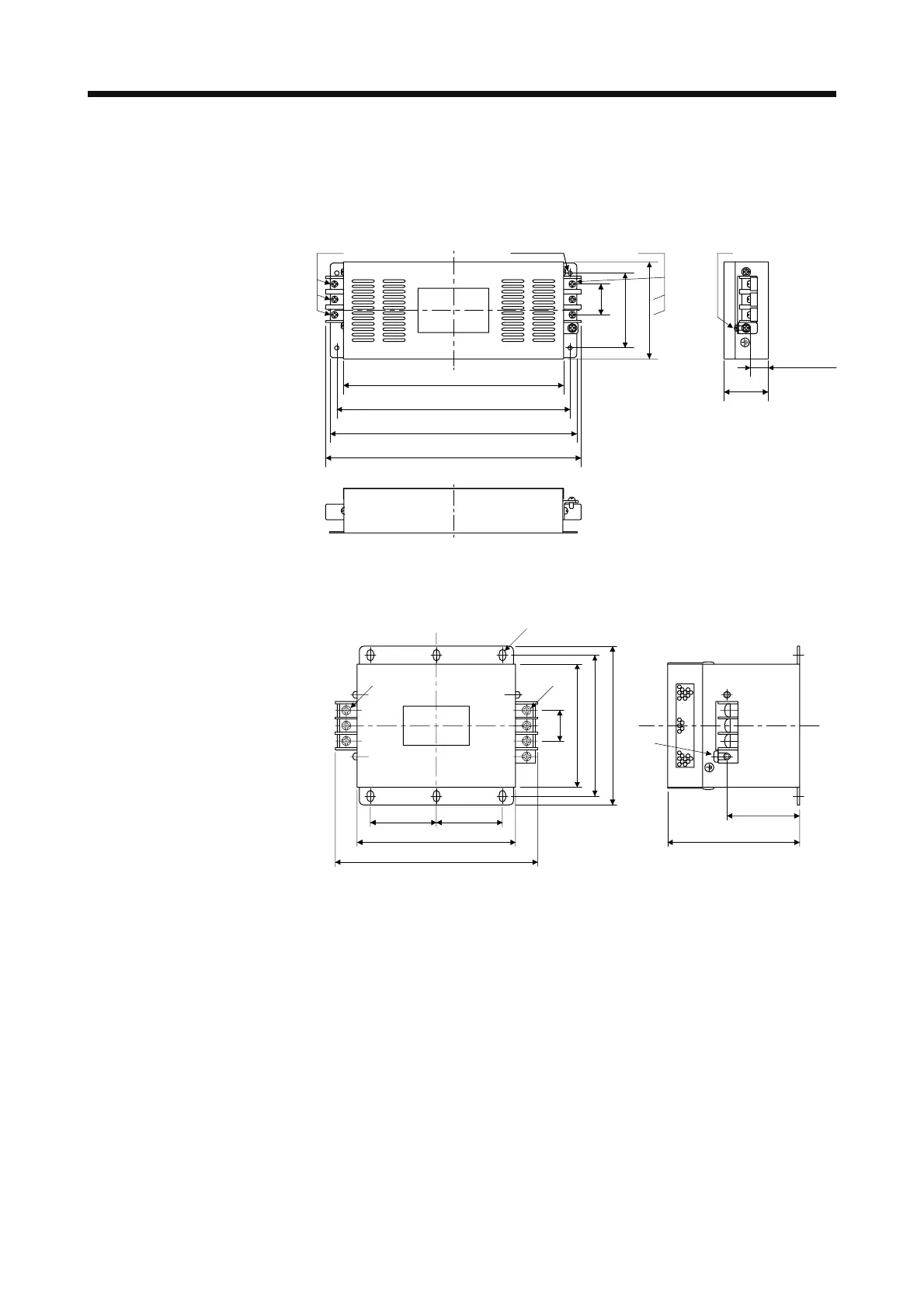
(3) Dimensions
(a) EMC filter
HF3010A-UN
[Unit: mm]
32 ± 2
85 ± 2
110 ± 4
258 ± 4
273 ± 2
288 ± 4
300 ± 5
M4
IN
3-M4
65 ± 4
Approx. 41
4-5.5 × 73-M4
HF3030A-UN/HF-3040A-UN
[Unit: mm]
125 ± 2
44 ± 1
260 ± 5
140 ± 2
70 ± 2
140 ± 1
155 ± 2
3-M5
6-R3.25 length: 8
3-M5
M4
85 ± 1
210 ± 2
85 ± 1

Table of Contents

Related product manuals