EasyManua.ls Logo

Moduline HSH E Series - Keys Pc Board Diagnostics

Moduline HSH E Series
21 pages
Print Icon
To Next Page IconTo Next Page
To Next Page IconTo Next Page
To Previous Page IconTo Previous Page
To Previous Page IconTo Previous Page
Loading...
RESEARCH AND DEVELOPMENT
4
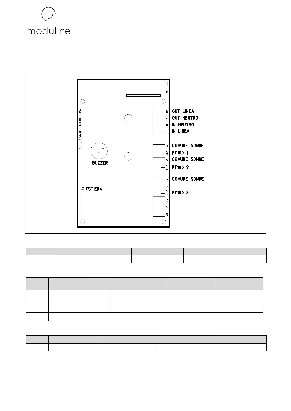
8 KEYS PC BOARD
POWER SUPPLY
Description
Type
Name
N - L Power supply 230Vac LINE IN NEUTRAL IN
PROBE
Probe
Description
Type
Operating Range
Conversion
Range
Range of use
PT1 Heating
element probe
PT100
-50°C ÷ +500°C -25°C ÷ +400°C -20°C ÷ +400°C
PT2 Cavity probe PT100
-50°C ÷ +500°C -25°C ÷ +400°C -20°C ÷ +400°C
PT3 Core probe PT100
-50°C ÷ +500°C -25°C ÷ +400°C -20°C ÷ +400°C
DIGITAL OUTPUTS
Out
Descrizione
Features
Name
OL Heating element Contact NO 16A AC1 LINE OUT

Related product manuals