EasyManua.ls Logo

Monitor MZ Series - Page 22

Default Icon
40 pages
Print Icon
To Next Page IconTo Next Page
To Next Page IconTo Next Page
To Previous Page IconTo Previous Page
To Previous Page IconTo Previous Page
Loading...
22
MZ INSTALLATION & MAINTENANCE
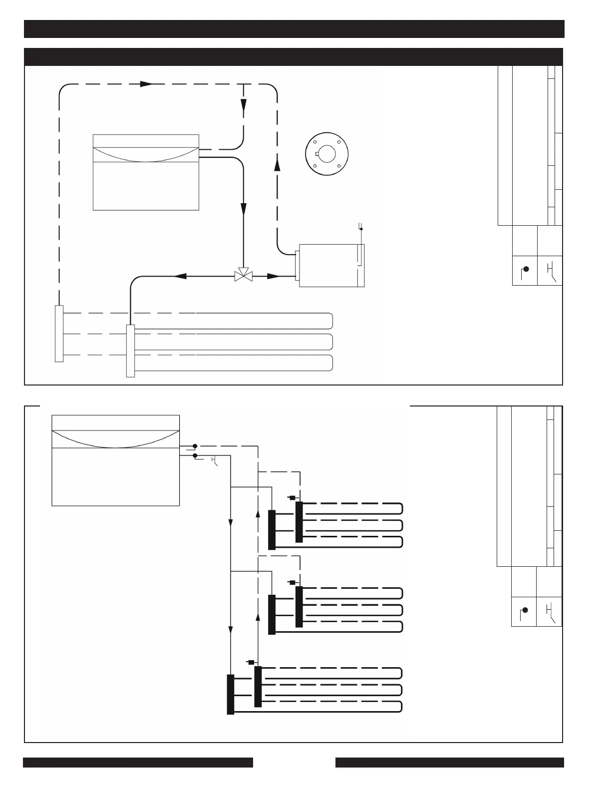
APPENDIX A
Radiant Heat
MZ Heating System
BS Tank
Top view of BS Tank
Relief Valve
(recirc when used)
System Supply
System Return
Domestic
Hot Water
3 Way Valve
(Kit # 9523)
1
4
3
2
MONITOR PRODUCTS, INC.
THIS DRAWING IS FOR REFERENCE ONLY. IT
IS NOT INTENDED TO DESCRIBE A COMPLETE
SYSTEM. EACH SYSTEM SHOULD BE DE-
SIGNED BY A PROFESSIONAL.
SIZE FSCM NO. DWG NO. REV
SCALE
SHEET
BALL VALVE
PURGE
/DRAIN
VALVE
MONITOR PRODUCTS, INC.
THIS DRAWING IS FOR REFERENCE ONLY. IT
IS NOT INTENDED TO DESCRIBE A COMPLETE
SYSTEM. EACH SYSTEM SHOULD BE DE-
SIGNED BY A PROFESSIONAL.
SIZE FSCM NO. DWG NO. REV
SCALE
SHEET
BALL VALVE
PURGE
/DRAIN
VALVE
MZ Heating
System
Radiant HeatRadiant HeatRadiant Heat
V I. APPENDIX A