EasyManua.ls Logo

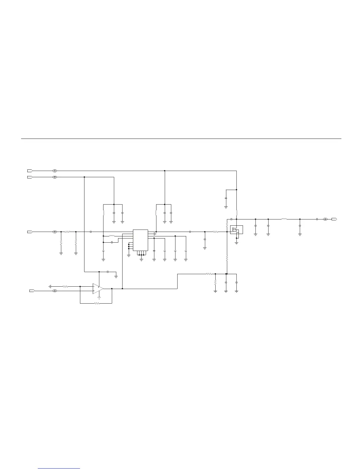
Motorola APX 1000 - Figure 8-166.Power Amplifier Circuit

Motorola APX 1000
1096 pages
To Next Page IconTo Next Page
To Next Page IconTo Next Page
To Previous Page IconTo Previous Page
To Previous Page IconTo Previous Page
Loading...
Schematics, Boards Overlays, and Parts Lists: Transceiver (RF) Boards: 900 MHz (84012478001) 8-349
Figure 8-166. Power Amplifier Circuit
1
IF1052
1
IF1051
TX_7V
IF
IF
FILT_RAW_B+
IN
IN
18
R1065
RF_IN
IF1053
IF
1
IN
C1001
33PF
R1064
300
300
R1066
C1002
L1002
C1004
33PF
6.8NH
4.7PF
C1003
.01UF
R1002
2
5
4
1
3
47K
LMV841
U1001
1
IF1054
R1001
33K
VC
IF
IN
C1025C1024
C1009C1007
3300PF 3300PF
33PF 33PF
D
G
S1
S2
C1019
C1026
R1007
R1006
C1023
L1009
4
2
1
3
Q1001
L1007
C1020
C1013
150
2.55NH
330PF
12PF
18PF 3.9PF
RD07MUP2B
13PF
0
59.71NH
C1018
33PF
L1003
C1008 C1010
33PF
.01UF
110NH
GND4
EP
G2
VD1
GND3
NC2
NC1
NC3
VCNTRL
NC4
GND1
GND2
RFOUT
NC5
RFIN
TPVG1
TPVG2
14
1
3
2
616
7
15
10
9
13
12
5
4
11
17
U1002
SRFIC7126
8
L1001
C1005 C1006
33PF
110NH
.01UF
R1004
R1003
C1014
68K
3300PF
27K
33PF
C1015
DNP
R1005
1K
1
IF1055
C1022
C1021
33PF
PA_OUT
IF
3.9PF
OUT

Table of Contents

Other manuals for Motorola APX 1000

Related product manuals